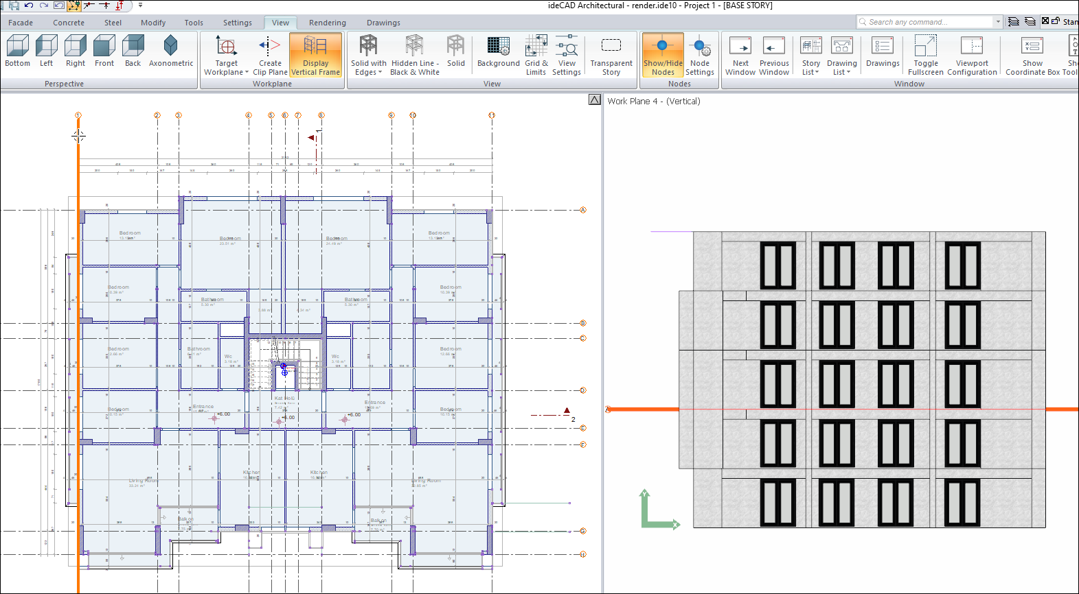
Vertical Frame View
By clicking on an axis with the "Display vertical frame" command, the vertical plane (frame) view of the elements on that axis is obtained as a solid model in perspective.
Usage steps:
Click the View/Display vertical frame command.
Choose an axis.

Next Topic