Add/Remove Dimension Parent
The Add/Remove Dimension Parent command is used to add or remove a new entity dimension to the inner and outer dimensions.
Location of the Add/Remove Dimension Parent Command
Select the dimension you want to add/remove and click the right button of the mouse and click Add/ Remove Dimension Parent from the menu.

In Architectural Program
You can access it under the ribbon menu Modify tab, Entity Edit title.

In the Structural Program
You can access it under the Ribbon menu Modify tab, Entity Edit title.

Usage Steps
Select interior or exterior dimension.
After clicking the right mouse button on the dimension, click the Add/Remove Dimension Parent line from the drop-down list or click the Add/Remove Dimension Paretn icon in the ribbon menu .
Objects that you can select will become active, objects that you cannot select will become inactive.
Select any object (axis, wall, etc.) or objects you want to add to the dimension.
Press the right mouse button. The command will terminate and the dimensioning will be refreshed.
Steps order |
|---|
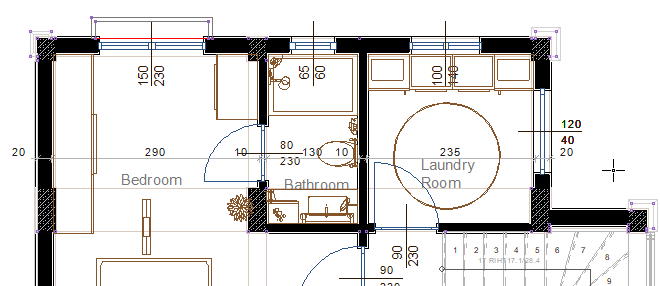
Before add/remove dimension parent ![]() |
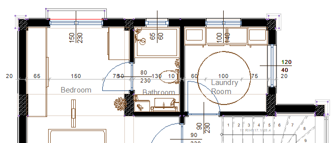
Selection of dimension ![]() |
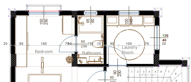
Selecting the first window to be added to the dimension while in the add/remove dimension parent command ![]() |
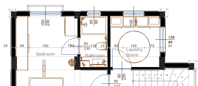
Selecting the second window to be added to the dimension and finalizing the selection process by clicking the right mouse button. ![]() |
After add/remove dimension parent ![]() |
Next Topic




