Create the Sheetings
Create the sheetings in this section.
Previous steps have been followed in the project file named Create the Sheetings. You can download the file and follow the steps given in this title on the project. |
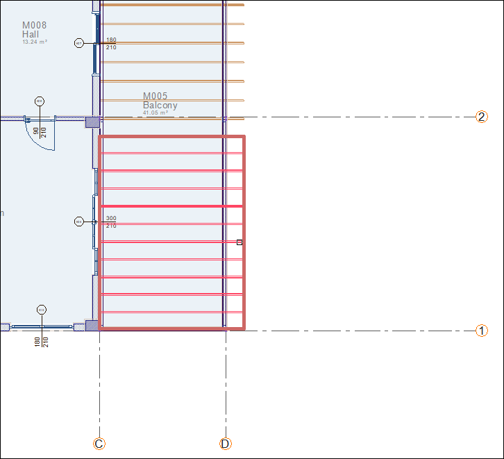
Click the sheeting command from the steel menu.
Select the purlins that are between 1-2 axes that you will be covering.

The sheeting settings dialog will open.

When you click the OK button, sheeting will be created.

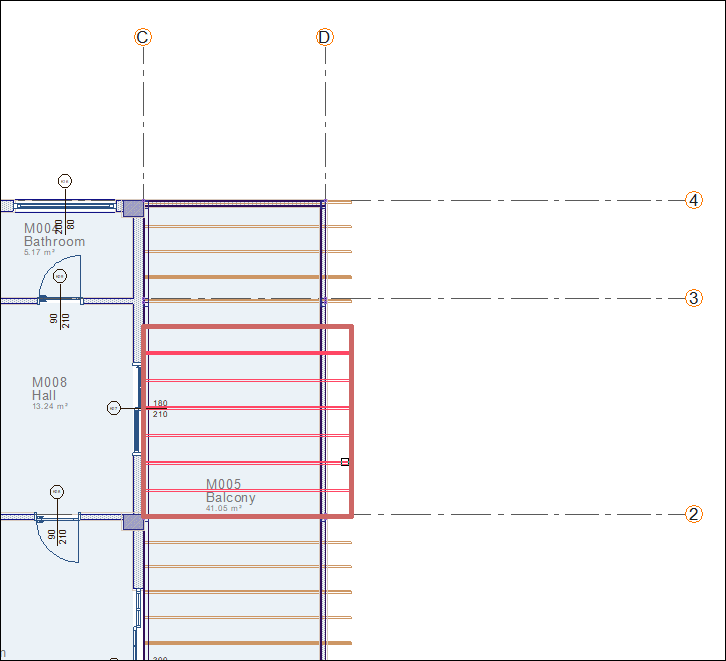
Click the sheeting command.
Select the purlins that are between 1-2 axes.

The sheeting settings dialog will open.
When you click the OK button, your sheeting will be created.

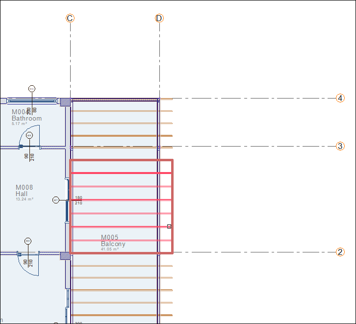
Click the sheeting command.
Select the purlins that are between 1-2 axes.

The sheeting settings dialog will open.
When you click the OK button, your sheeting will be created.

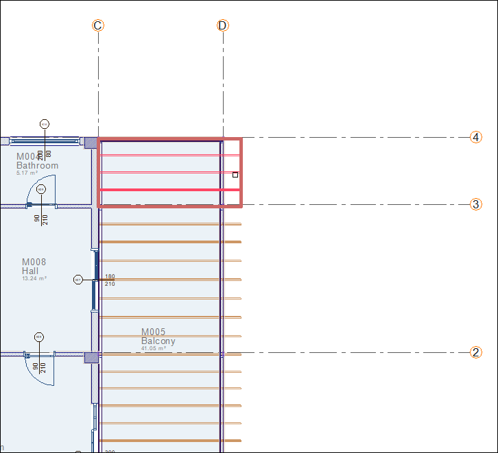
Complete your sheetings by selecting your purlin elements with gaps between them using the sheeting between element command.
Click the sheeting between element command.
Select the purlins with gaps between them.


Press the Esc key on the keyboard to exit the command.
Sheetings are completed.
Follow the steps of the video below.
Next Tutorial