Set Entity Direction
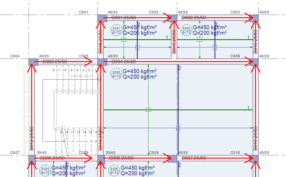
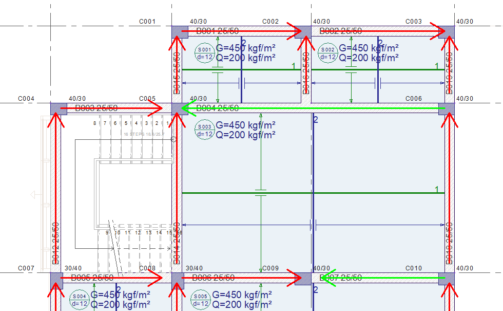
The Set Entity Direction command is used to change the viewing directions of beams and strips. The beam viewing direction can be understood from the directions of the beam texts.
Location of Set Entity Direction Command
You can access it from the ribbon menu Modify tab under the Entity Edit heading.

Usage Steps
Click the set entity direction icon.
Select the beam whose direction you want to change. When the arrow that appears along the beam is reversed and its color changes from red to green; the direction of that beam changes.
You can also select multiple beams whose direction you want to change.
Press ESC to exit the command.
You will see that the beam texts, therefore the beam are turned upside down.
Usage step |
|---|
Beams before entity direction is changed ![]() |
Beams with entity directions ![]() |
Selecting the beams to be diverted ![]() |
Beams after entity direction is changed ![]() |
The beam and strip directions are not architecturally significant. However, it is important in terms of structural continuity.
Next Topic



