Adding Door/Window Dimensions to Inner Dimension
The dimensions of the door/window or newly created wall objects are added to the dimensions created with the inner dimension command, and the dimensions of the objects you do not want are removed with the "Add/Remove Dimension Parent" feature in the right click menu.
To add door/window dimensions;
Select the dimension you want to add and click the right mouse button.
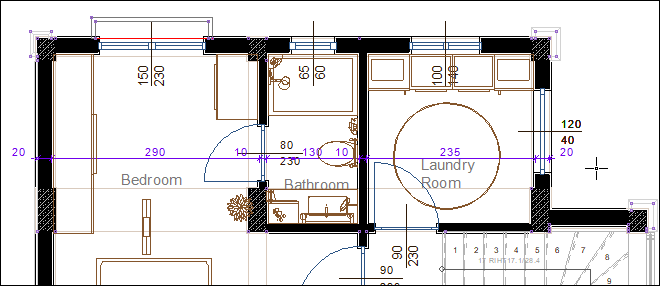
When you click the "Add/Remove Dimension Parent" line from the drop down list, the dimensioned objects will change color.
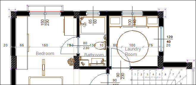
Select the windows you want to add to the dimension and click the right mouse button.
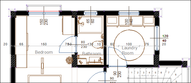
The windows you choose have been added to your inner dimension .




Next Topic