Fix the Failures
The project, which was prepared with ideCAD Architectural, was opened with ideCAD Structural. By making Analysis+Design, you can identify the failures with visualization possibilities and make the necessary intervention. |
Click on the Analysis+Design (F9) command.

The Analysis Settings dialog will open.
Click the OK button to start the analysis.
Wait for the analysis to complete in the Analysis Status window.
After the analysis is complete, click the OK button to close the window.

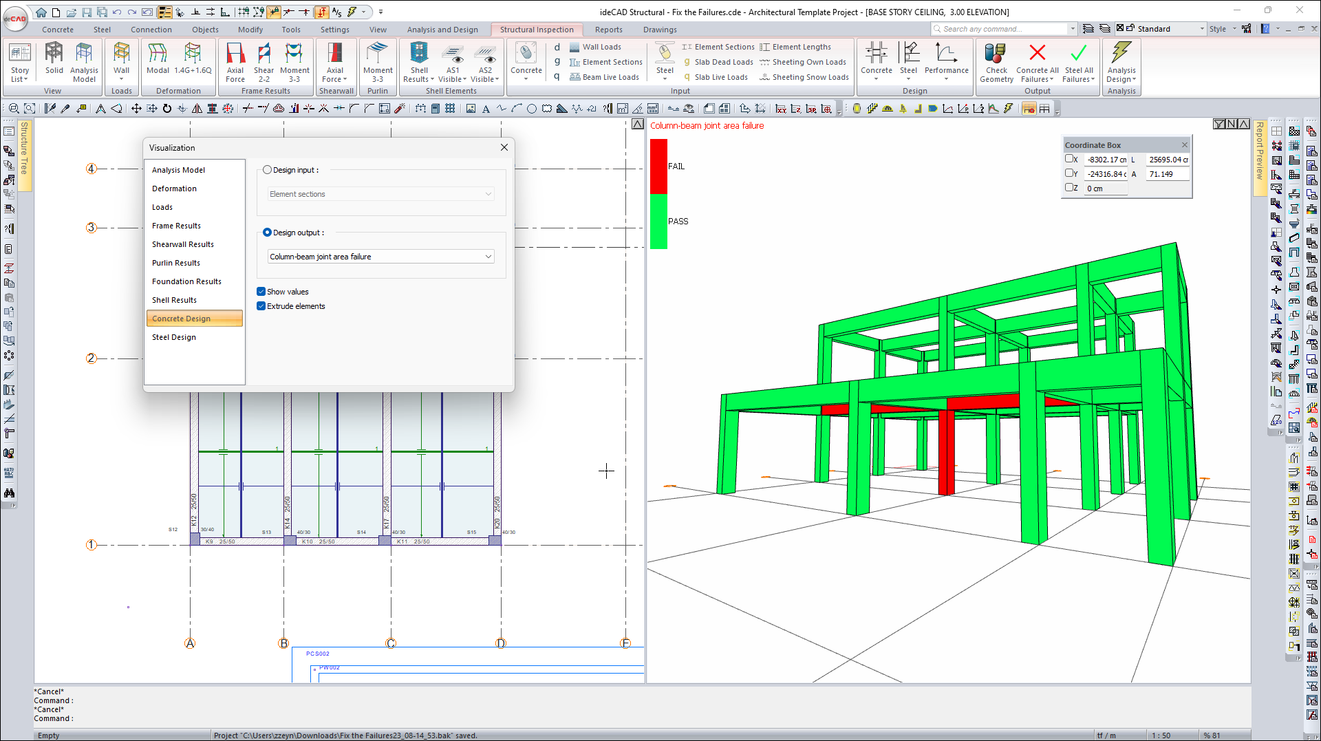
A red cross will be seen on the Output heading Concrete All Failures.

Open the Concrete All Failures list.
Click on the Concrete Column-Beam Joint Area.

Elements with this failure appear in red in the Visualization Window.

Concrete Column-Beam Joint Area failure should be eliminated.
Close the visualization dialog.
Open the Column Settings dialog by double-clicking on the S10 column.
In the General tab, write 30 cm for width value and 40 cm for height value.
Click the OK button to close the dialog.


Open the STORTY 1 CEILING page.
Open the Column Settings dialog by double-clicking on the S10 column.
In the General tab, write 30 cm for width value and 40 cm for height value.
Click the OK button to close the dialog.

Click the Analysis+Design (F9) command.
Do you want to perform analysis? question will be asked.
Click the Yes button.
Wait for the analysis to complete from the Analysis Status window.
After the analysis is complete, click the OK button to close the window.

A green tick will appear on Concrete All Failures in the Output heading.
This sign means that there is no failures in the project.

Open the Concrete All Failures list.
Click on the Concrete Column-Beam Joint Area failure.
Concrete elements will be displayed in green in the Visualization Window.
There is no Concrete Column-Beam Joint Area failure in the project.
Follow the steps of the video below.
Next Tutorial