Create the Facade Elements
Create sweeps in this section.
Previous steps have been followed in the project file called Create the Facade Elements. You can download the file and follow the steps given in this title on the project.
|
In order to work on the project more comfortably, turn off the level information of the terrain.
Enter the layer settings.
From the drawing details tab, uncheck the options of elevation point, elevation line nodes', hole nodes and sub region nodes' level dimension.
Click the OK button to close the dialog.


Creating sweeps for doors and windows, click on the jamb command from the facade menu.
Choose the doors and windows on the exterior to be attached to the jambs.. Click the right mouse button to complete the selection process.

The preview of sweeps will occur in the plan. You can determine which side of the wall will be by pressing the spacebar key.

Click the left mouse button.

Base story sweeps for doors and windows will be formed.

Go upper story.
Click on the jamb command.
Choose doors and windows. Click the right mouse button to complete the selection process.

The preview of sweeps will occur in the plan. You can determine which side of the wall will be by pressing the Space key.

Click the left mouse button.

The upper story sweeps for doors and windows will be formed.

Creating sweeps for walls, click on the cordon command.
Select the free drawn method from the sweep toolbar, and cordon 01 from the section list.

Click on the settings icon. Enter -45 cm for the elevation value.

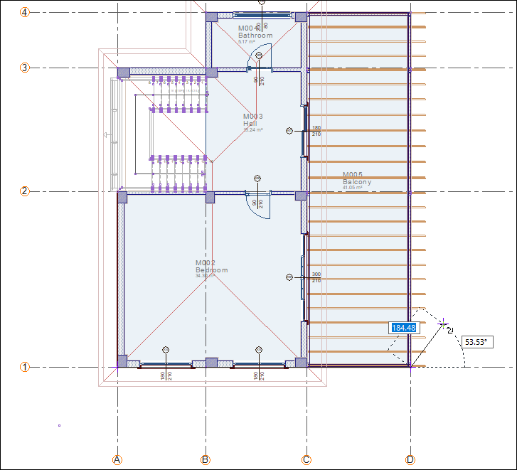
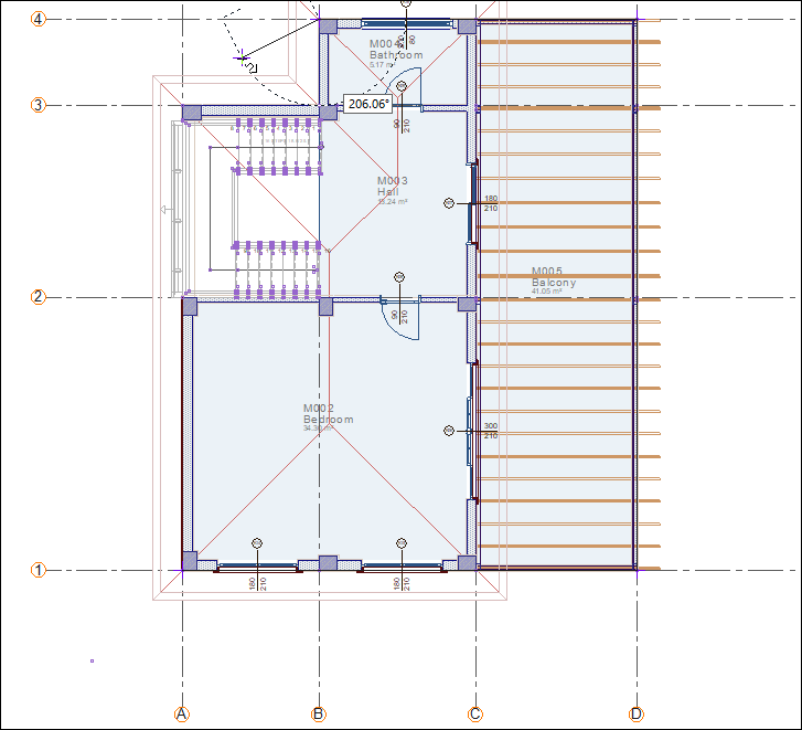
Click on the A-1 axis intersection then click on the D-1 axis intersection.

Click on the D-4 axis intersection then click on the B-4 axis intersection.

After clicking the B-3 axis intersection, click the right mouse button to end the command.

Sweeps for walls will occur.

Place the rainwater pipes in the field.
Go base story.
Select all rainwater pipe and double click on one.
The rainwater pipe settings dialog will open.
Change the height of the pipe to 615 cm and the elevation value to -15 cm.

Rainwater pipes will fit into the terrain.

Follow the steps of the video below.
Next Tutorial