New Layout Block-All Drawing
With the New Layout Block-All Drawing command, all of the drawings in the drawing window are made into block at once and saved in memory or archive.
Location of New Layout Block - All Command
You can access it under the ribbon menu drawings tab, Layout Design title.

Usage Steps
Click the New Layout Block - All icon.
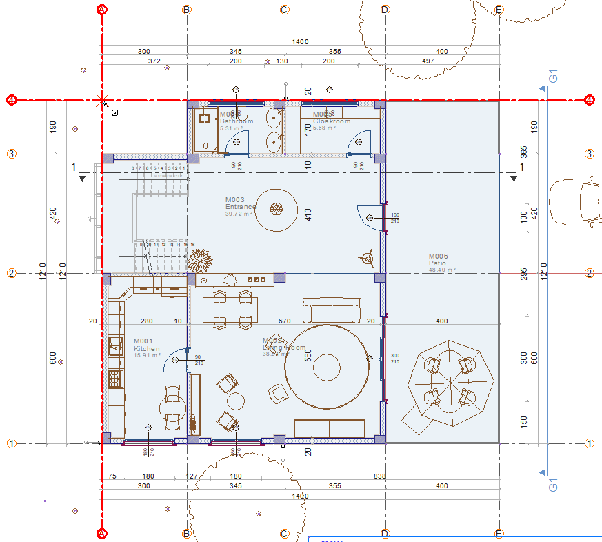
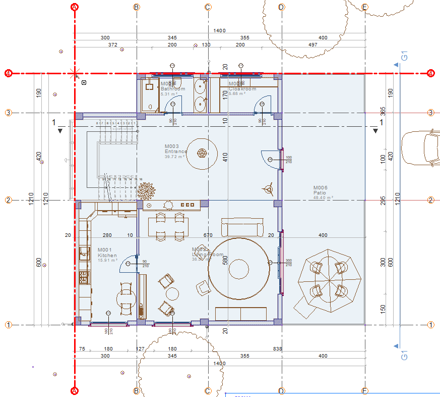
Click any point in the drawing area. The point you click will be the insertion point of the block.
The Layout Block Settings dialog will open. In this dialog, give a block name and set the scale.
If you leave the Save to library line checked, the block will be saved in the archive.
Click the OK button.
Usage step |
|---|
Determination of insertion point ![]() |
Layout block creation ![]() |
Next Topic

