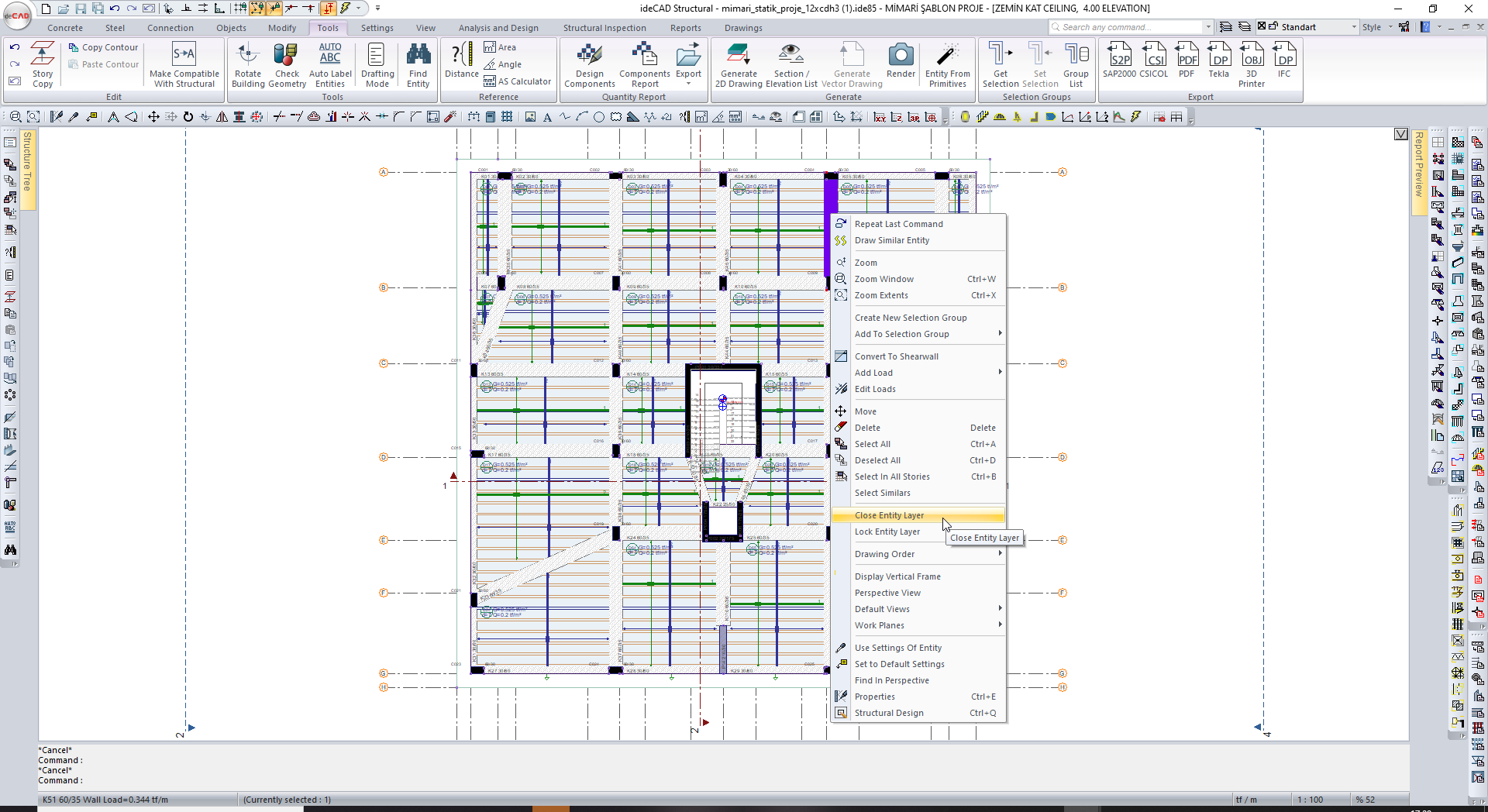
Close / Lock Entity Layer
Without entering the layer settings, the object layer is closed or locked with a single click from the menu that opens by selecting an object and pressing the right mouse button on it.
Usage steps:
Select the object.
After moving the mouse cursor over the object, press the right button. (If the right click menu is not active, hold down Ctrl and move it on the object and press the right key.)
Click the Lock Entity Layer or Close Entity Layer line from the menu that opens.
