Creating an Outer Dimension
The outer dimensions of the project are given with the outer dimension command. Structural elements to be included in the dimensioning are selected from the settings. Outer dimension is smart command. After the dimensions are given, the changes made in the relevant building elements are automatically reflected in the dimensions.
Location of Outer Dimension Command
In the Architectural Program
You can access it under the ribbon menu Drawings tab, Dimension heading.

In the Structural Program
You can access it under the ribbon menu Drawings tab, Dimension heading.

Dimension Toolbar

Icons |
|---|
Outer dimension ![]() Outer dimension command runs. |
Inner dimension ![]() Inner dimension command runs. |
Free dimension ![]() Free dimension command runs. |
Intersection dimension ![]() Intersection dimension command runs. |
Label ![]() Runs the label command. The dimension label is drawn. |
Level dimension ![]() Draws level dimension in the plan window. |
Section elevation ![]() It is used for section elevation in section and view windows. Only active in 2D drawing windows. |
Angle dimension ![]() Dimensions the angle between two objects. |
Radius dimension ![]() Dimensions entities drawn with a circle or arc and arc or circle axis in diameter or radius. |
Section dimension group ![]() Creates a section dimension group. It is active in section and view windows. |
Section dimension ![]() Creates a section dimension. It is active in section and view windows. |
Include beams ![]() Include beams in dimension. |
Include slabs ![]() Include slabs in section dimension. |
Include details ![]() Include door/window elements in section dimension. |
Left side ![]() Places the section dimension on the left. |
Right side ![]() Places the section dimension on the right. |
Settings ![]() When clicked, which dimension type is active (inner, outer, intersection etc.) opens the dimension settings dialog where the parameters related to that dimension are found. |
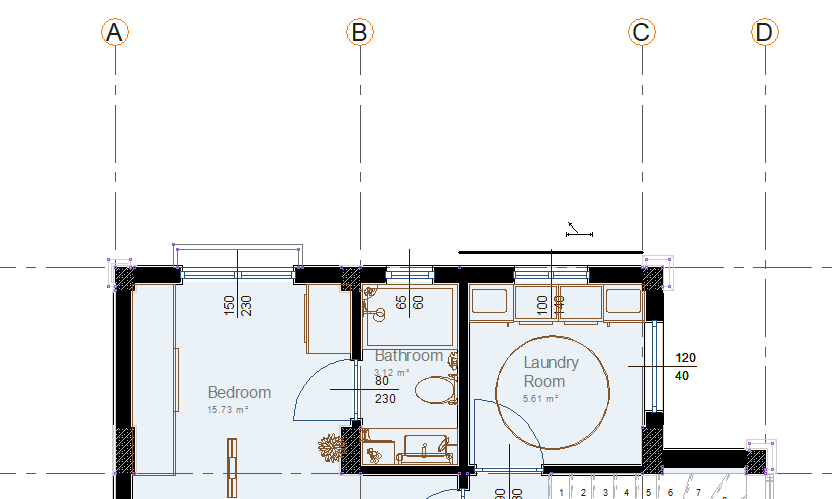
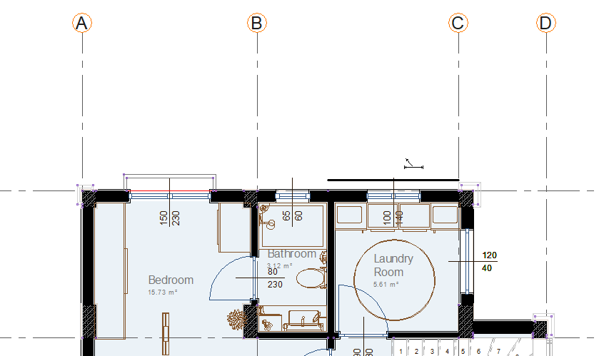
Usage Steps
To create an outer dimension:
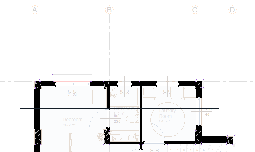
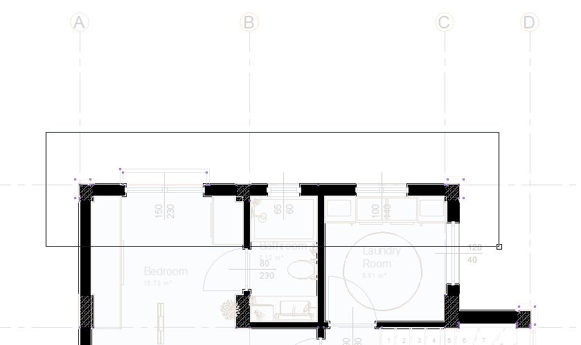
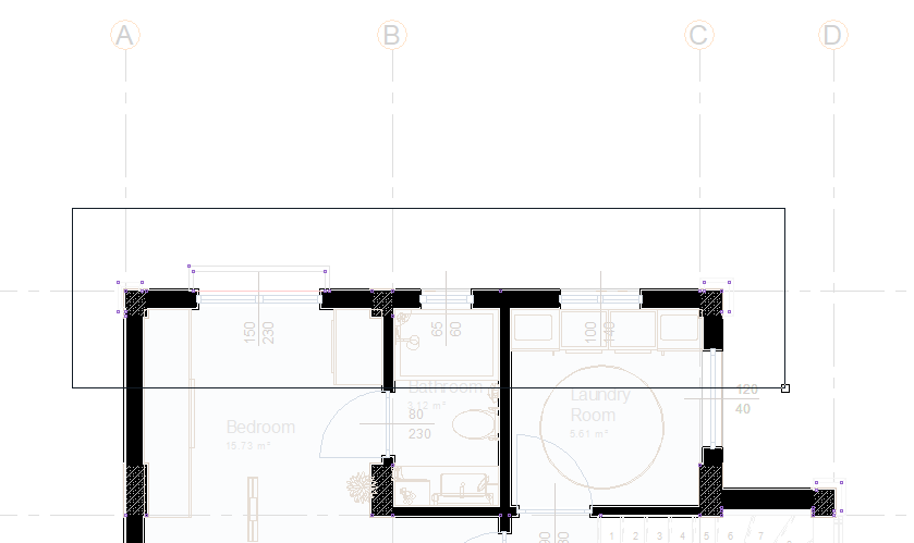
Click the Outur Dimension icon in the ribbon menu .
Select the objects to be dimensioned (such as wall, column) by clicking with the left mouse button.
Click the right mouse button.
Click on the wall you want the dimensioning to be parallel to with the left mouse button. Dimensioning will be made.
Usage step |
|---|
Selecting the objects to be dimensioned (such as wall, column) with the left mouse button and finalizing the selection by clicking the right mouse button. ![]() |
Determining which wall the dimensioning will be parallel to by clicking the mouse against that wall ![]() |
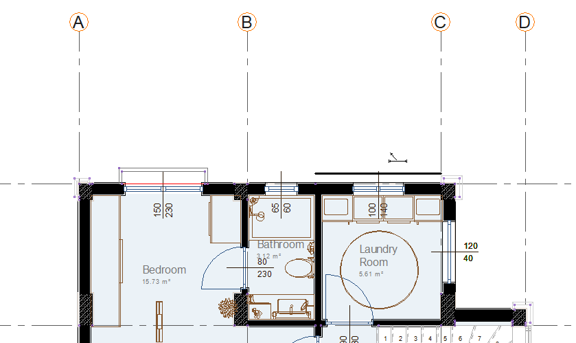
Formation of the outer dimension ![]() |
Location of Outer Dimension Settings Dialog
Outer Dimension Command Settings
You can access it under Free Dimension in the Drawings tab of the Ribbon menu.

You can also access it by clicking the Settings icon in the dimension auxiliary toolbar that appears after the outer dimension command is run.

Outer Dimension Object Settings
Select the outer dimension that you want to enter its settings and click the Properties row from the menu that opens by clicking the right button of the mouse.

Dimension Settings - General Tab
Properties on the tab change as active or inactive according to the dimension type.

Specifications |
|---|
Text section |
![]() The font height of the dimension is entered. |
![]() The distance of the dimension text from the objects is entered. |
![]() The distance of the dimension text to the dimension line is entered. |
![]() The position of the dimension text relative to the dimension line is selected. |
![]() When the button is clicked, the "Font Settings" dialog appears. Font of information text can be set here. |
Distances section |
Line displacement ![]() The distance from the dimension lines to each other is determined. |
![]() The size of the cross separators is entered in the dimension lines. |
![]() Upper bracket size of the dimension line is entered. |
![]() The bottom marker size of the dimension line is entered. |
![]() How long the dimension line will continue after the left and right end reference points is entered. |
![]() The distance of the dimension line from the curved objects taken as reference by the bottom separator is entered. |
Dimension style ![]() Display type of dimension lines is selected. |
Colors Section |
![]() Sets the color of the dimension text. When the color box is clicked, the appropriate color is selected from the window that opens. |
![]() Sets the color of the dimension lines. When the color box is clicked, the appropriate color is selected from the window that opens. |
![]() Sets the color of the dimension marker. When the color box is clicked, the appropriate color is selected from the window that opens. |
Value scale ![]() The actual length values written on the dimensioning line are multiplied with the value written here and the value found at the result of multiplication is used as the measurement value. For example, the dimension line values are 120, 200, 350. If 2 is written to the scale value, the lengths of 120, 200, 250 will be written as 240, 400, 700 in the dimensioning line. |
Offset ![]() If the "Connected to objectt" option is selected, the dimensioning line is drawn from the selected objects as far as the entered offset distance value. If the box is not checked, dimensioning is drawn on the line determined by clicking two points with the mouse in the drawing area. |
Marker type ![]() One of the two marker types that can be used in dimensioning is selected. |
Dimension lines section |
Total ![]() It gives the total length of all lines. |
Axis ![]() It gives the dimensions of the axes corresponding to the dimensioning line. |
Walls/Beams/Shearwalls ![]() It shows the lengths of each wall/beam/shearwall part in the selected line. |
Columns ![]() Shows the lengths of the columns selected on the outer dimensioning line |
Extended properties section |
Use columns on axis dimension ![]() In external dimensioning, the axes are dimensioned and also the columns are dimensioned. |
Dimension Settings - Units Tab

Specifications |
|---|
Basic units ![]() One of the selections is activated by clicking the left mouse button on the job. Meter : If checked, the unit of information text will be meters. |
Digit count ![]() It determines how many digits will be shown after the comma. The desired number is selected from the list. For example, if 2 is selected, units will be shown as two digits after the comma. If 0 is selected, units will not be shown after the comma. |
Fractions ![]() It determines the precision of the dimension to be made in fractional inch format. In the list, there are options with a sensitivity of 1/2, ¼, 1/8, 1/16, 1/32, 1/34. If "no fraction" is selected, units will appear without fractions. |
Rounding interval ![]() It determines the rounding range of the measurement to be made in meters, centimeters or millimeters. If No rounding is selected, the dimensioning is done at exact value. As the range gets larger, the dimensioning is rounded up to the selected range. |
Show zero unit ![]() If it is not checked, it does not show the zero and point on the left in dimensioning. For example, it measures 0.20 as 20. If marked, the value 0.20 is scaled as 0.20. |
Small fraction text ![]() When fractional inch format is selected, determines the fractional part to display in upper / lower case. If it is checked, the fraction is slightly above the integer and small, if not, the fraction is shown the same size next to the integer. |
Show zero foot ![]() Determines whether 0 is displayed in the 0-foot gauge (less than 1 foot gauge). For example, if it is not checked, it will show a measure of 0 '- 15 "as -15". If marked, it shows as 0'-15 ". |
Show zero inch on 0-1 inch range ![]() For example, a dimension inch with a value of 8'-0 1/6 "is in the range 0-1. If the option is not ticked, the value 8'-0 1/6" will be displayed as 8'-. In other words, inch values in the 0-1 range will not be displayed. |
Show absolute zero inch ![]() Determines whether to show zero inches in the dimension value where inches is absolute zero. For example, a dimension of exactly 10 'will be displayed as 10'-0 "if this option is selected. If not checked, it will be displayed as 10" -. |
Next Topic



















































