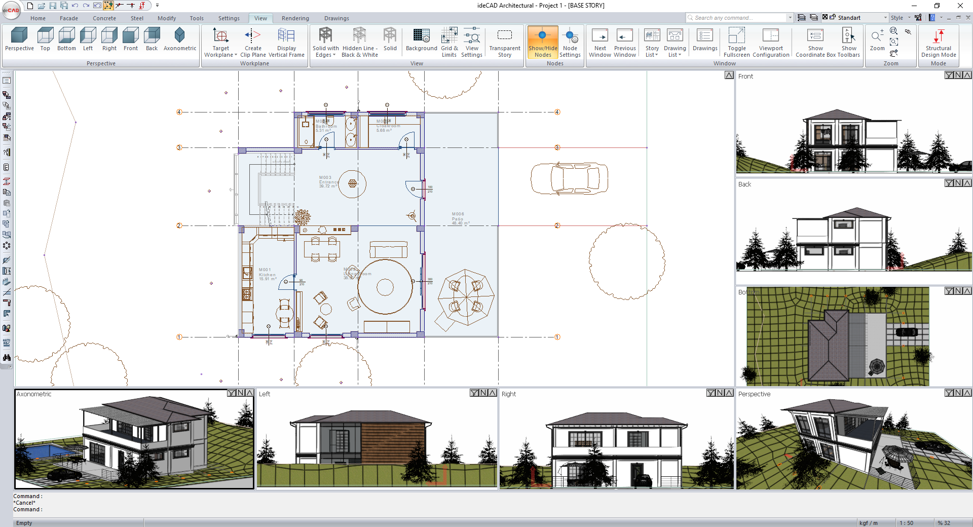
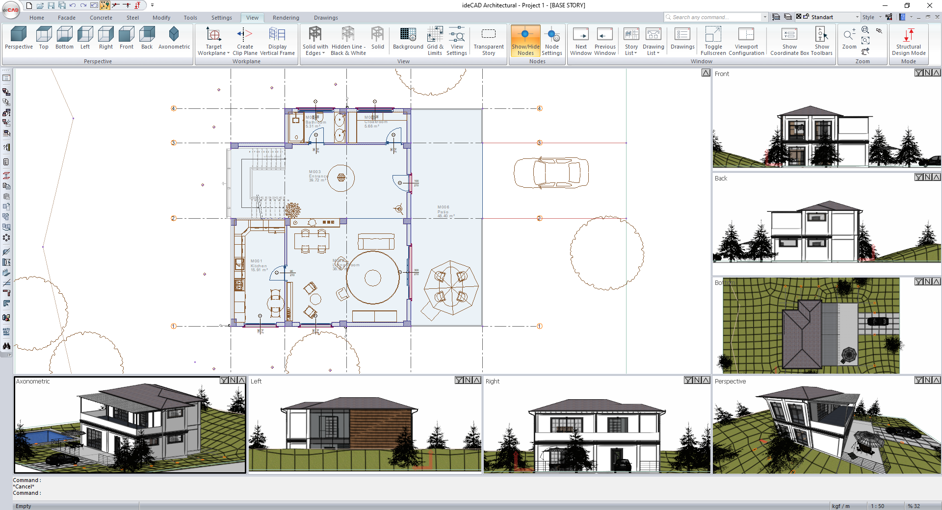
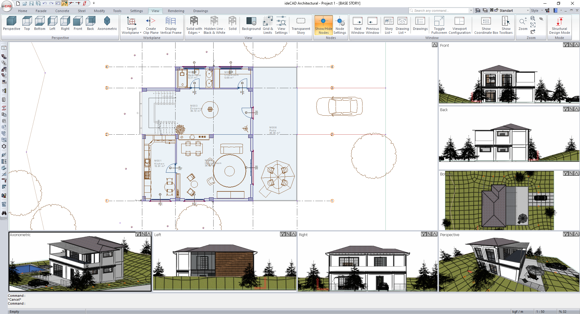
Viewport Configuration
With Viewport configuration feature, the working screen is divided into sections. Which screen shape you want to work with in the viewport configuration dialog, that option is checked.
Location of the Viewport Configuration Command
You can access it under the View tab Window title.

You can also access it from the Viewport Configuration tab in the Preferences.
Viewport Configuration Dialog

Configurations |
|---|
![]() ![]() |
![]() ![]() |
![]() ![]() |
![]() ![]() |
![]() ![]() |
![]() ![]() |
![]() ![]() |
![]() ![]() |
![]() ![]() |
![]() ![]() |
Usage Steps
Click the Viewport Configuration icon.
In the dialog that opens, select the screen you want to work with.
Click the OK button and close the dialog.
Next Topic



















