TSC Splices
Splice length lo for deformed bars and deformed wires in tension is controlled automatically
Symbols
a = The horizontal distance between the stirrup legs and crossties
lb = development length in tension of deformed bar, deformed wire, plain and deformed welded wire reinforcement, or pretensioned strand,
s = center-to-center spacing of items, such as longitudinal reinforcement, transverse reinforcement, tendons, or anchors,
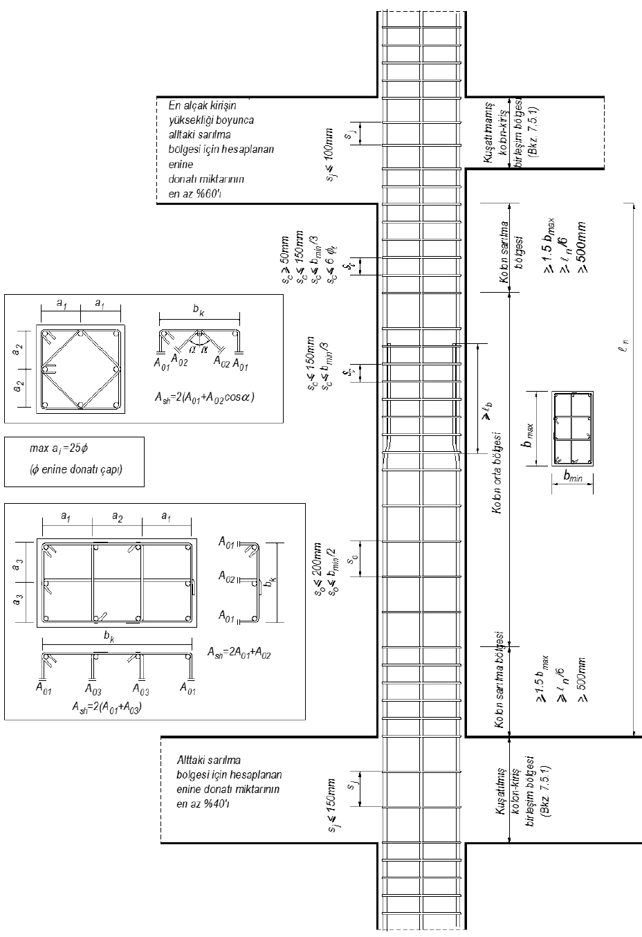
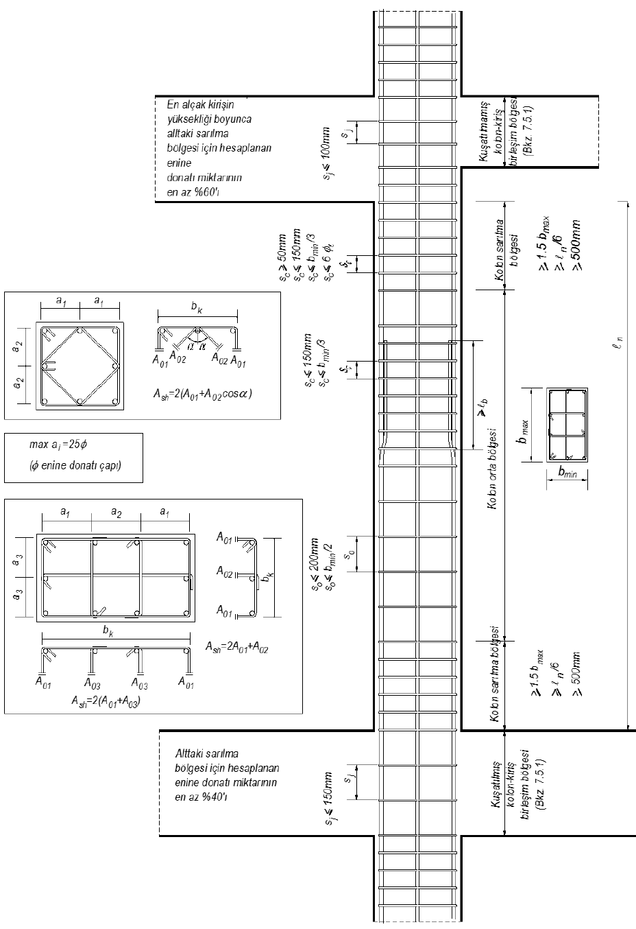
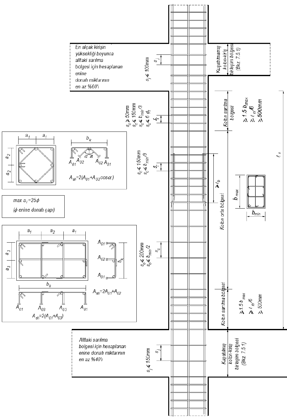
Column Lap Splices
Column Lap splice details are given TSC Figure 7.3. The lap splice zone of the column is the zone between the confinement zones defined at the lower and upper ends of the column.
Transverse reinforcement with a diameter smaller than 8 mm shall not be used lap splice of the column.
Along the column, the stirrup spacing shall not be greater than half of the smallest cross-section dimention and 200 mm.
The horizontal distance between the stirrup legs and crossties, a, should not be greater than 25 times the stirrup diameter.

Beam Lap Splices
Beam Lap splice details are given TSC Figure 7.7.

Next Topic