Generate Concrete Design Reports
Generate TDY, concrete and steel element reports of the project whose Analysis+Design is done. |
Click the Analysis+Design (F9) command.
Do you want to perform analysis? question will be asked.
Click the Yes button.
Wait for the analysis to complete in the Analysis Status window.
After the analysis is complete, click the OK button to close the window.

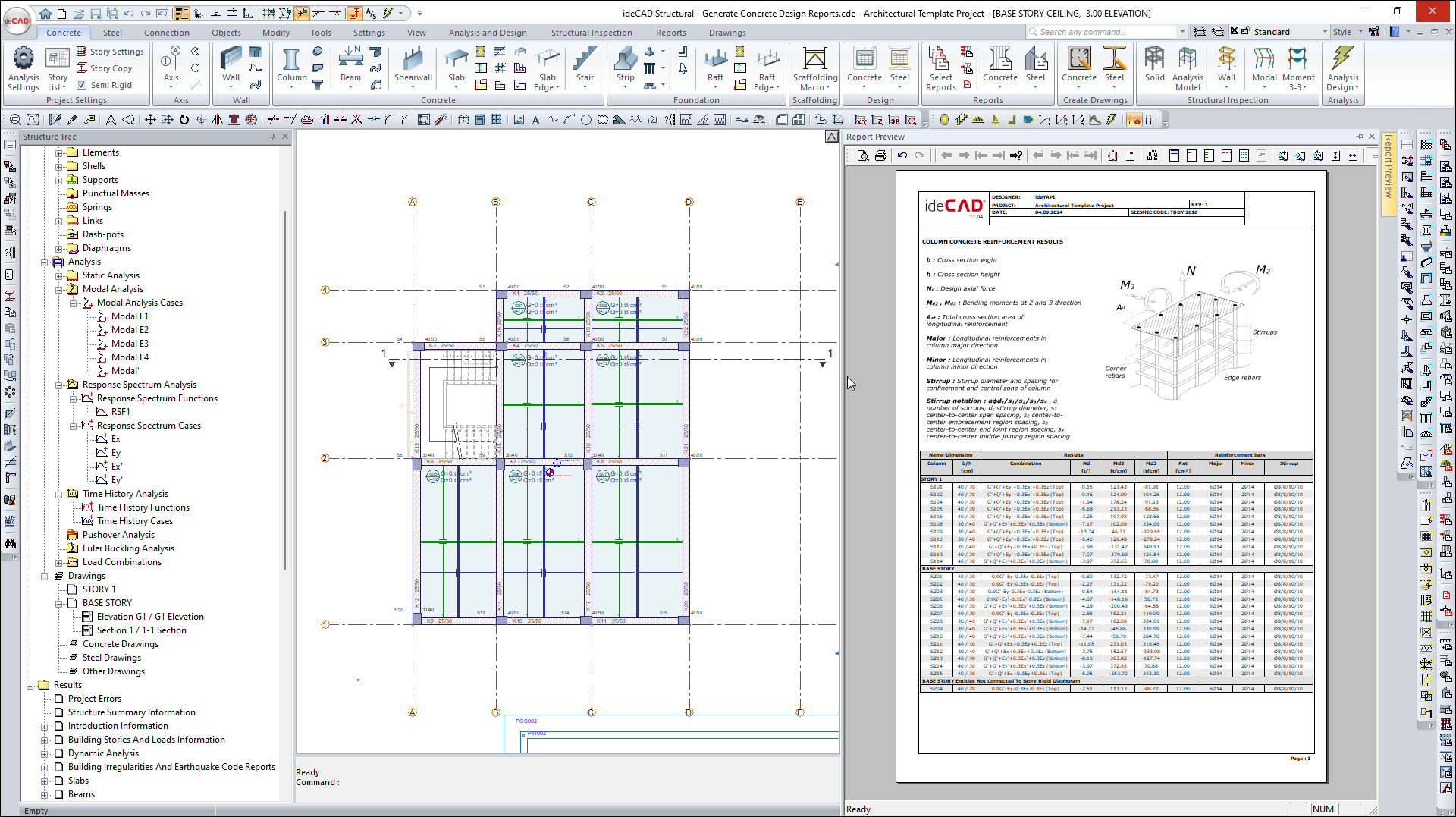
Open the list of columns from the Structure Tree, Results list.
Click on Column Concrete Reinforcement Results line.

Column Concrete Reinforcement Results report will be opened in the Report Preview.

Close the Report Preview window.
Click on the Ribbon menu Reports tab.
Click on the Column General Report command from the Concrete heading.

Concrete column reports will be opened in ide Report.
With the Fit height command, the zoom is made according to the page height.
Examine concrete column reports.

Click the Show Index command in the ide Report.
The Index section of the Concrete Column reports opens.

Click the Transverse reinforcement conditions for high ductile columns.
The transverse reinforcement conditions report for the columns will be opened.

Close the ide Report.
Click the Beam General Report command from the Concrete heading.

Concrete beam reports will be opened in ide Report.
With the Fit width command, the zoom is made according to the page width.

Examine concrete beam reports.
Follow the steps of the video below.
Next Tutorial