Place the Windows
Build the base story windows in this section.
Previous steps have been followed in the project file named Place the Windows. You can download the file and follow the steps given in this title on the project. |
Click on the door/window command.
Click the settings icon from the door/window toolbar.
In the types tab select the line 1.50/windows/simple/Pen17.DIO from the list.

On the placement tab, change the elevation value to 7 cm, height value to 210 cm, and width to 180 cm. Click the OK button to close the dialog.

Check the Use distance option in the door/window toolbar and enter 0 in the value box.

Move your mouse to the middle of the wall bounded by axes A and B on the axis 1.
A red arrow will pop up and the window will be placed in the center of the wall.

Click the left mouse button. The window will be created.

Move your mouse to the middle of the wall bounded by the B and C axes on the axis 1.
A red arrow will pop up and the window will be placed in the center of the wall.

Click the left mouse button. The window will be created.

Click the settings icon from the door/window toolbar.
In the types tab select the line 1.50/windows/vasistas/P07.DIO from the list.

On the placement tab, set the elevation value to 170 cm, the height value to 80 cm, and the width to 200 cm. Click the OK button to close the dialog.
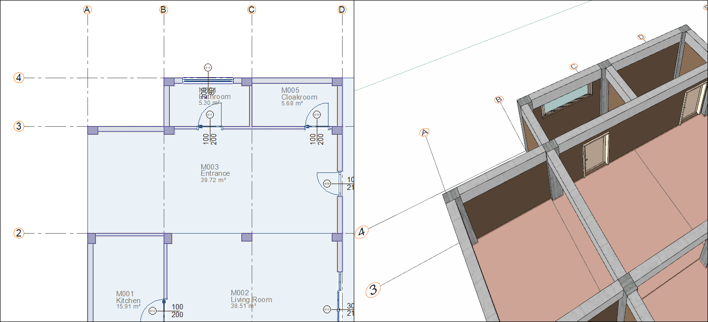
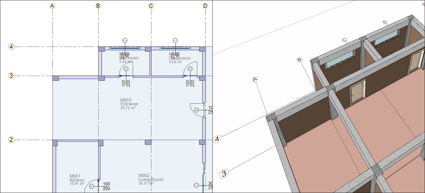
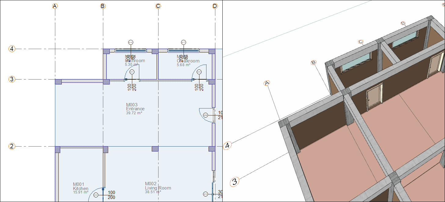
Move your mouse to the middle of the wall bounded by axes B and C on the axis 4.
A red arrow will pop up and the window will be placed in the center of the wall.

Click the left mouse button. The window will be created.

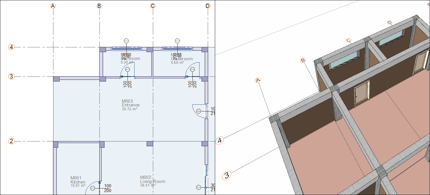
Move your mouse to the middle of the wall bounded by axes C and D on the axis 4.
A red arrow will pop up and the window will be placed in the center of the wall.

Click the left mouse button. The window will be created.

Press the Esc key on the keyboard to exit the command. Base story windows are completed.

Follow the steps of the video below.
Next Tutorial