Skip to main content
Skip table of contents

Composite Castellated Beam Results

Composite castellated beam design results and inadequacies of composite castellated beams are displayed in the Composite Castellated Beams dialog. If the sections of the secondary beams are selected as castellated beams and composite slab is defined on these secondary beams, the composite castellated beam design is used. In the Composite Castellated Beams dialog, shearing in the gross and net area, body buckling, vierendeel controls, internal force results and net moment of inertia calculation are also given.

Location of Composite Castellated Beam Dialogue

After the analysis is done, you can access it by clicking the Composite Castellated Beam Results command under the Steel Design heading in the ribbon menu Analysis and Design tab .

Composite Castellated Beams

Specifications

ID

Castellated beam is the name of the beam in the plan.

Section

It is the section used in castellated beam.

Material

Castellated beam is the material class of the beam.

Construction stage design

The construction stage shows the design control.

Composite design

Demonstrates composite design control.

Deflection

Shows castellated control.

Construction stage design

The construction phase opens the design details window.

Composite design

Opens the composite design details window.

Previous

The cursor moves to the previous line.

Next

The cursor goes to the next line.

OK

It saves the changes made and closes the dialog.

Cancel

Closes the dialog without saving the changes made.

Summary Information

The summary information about the line where the cursor is located is given in the name of the dialog in story, pose format.

For example, BASE STORY, SB001

Using the Shift key

In this tab, you can select more than one row with the Shift key, enter a value by double-clicking any cell whose value is open to change, and make that value apply to all selected rows.

Using the Ctrl key

Ctrl key selects the lines in between one by one.

Construction Stage Design

Design Details Tab

Specifications

Bending

Combo: It is the combination that creates the most unfavorable section forces.
Location: It is the position of the section forces taken into account in the design on the beam.
Mu3: It is the moment value acting on the element in 3 direction.
Mc3: It is the moment capacity of the element in 3 directions.
Ratio: It is the moment-to-capacity ratio.

Shear (Gross)

Combo: It is the combination that creates the most unfavorable section forces.
Location: It is the position of the section forces taken into account in the design on the beam.
Vu: It is the shear force acting on the element.
Vc: It is the shear force capacity of the element.
Ratio: It is the ratio of the shear force of the element to the capacity.

Shear (Net)

Combo: It is the combination that creates the most unfavorable section forces.
Location: It is the position of the section forces taken into account in the design on the beam.
Vu: It is the shear force acting on the element.
Vc: It is the shear force capacity of the element.
Ratio: It is the ratio of the shear force of the element to the capacity.

Horizontal shear

Combo: It is the combination that creates the most unfavorable section forces.
Location: It is the position of the section forces taken into account in the design on the beam.
Vu: It is the shear force acting on the element.
Vc: It is the shear force capacity of the element.
Ratio: It is the ratio of the shear force of the element to the capacity.

Web post buckling

Combo: It is the combination that creates the most unfavorable section forces.
Location: It is the position of the section forces taken into account in the design on the beam.
Mu: It is the moment value acting on the element.
Mc: Moment capacity of the element.
Ratio: It is the ratio of the moment acting on the element to the capacity.

Vierendeel bending

Combo: It is the combination that creates the most unfavorable section forces.
Location: It is the position of the section forces taken into account in the design on the beam.
Pu: It is the axial load value.
Mu3: It is the moment value acting on the element in 3 direction.
Pc: The axial load capacity of the honeycomb beam.
Mc3: It is the moment capacity of the element in 3 directions.
Interaction equation: It is the interaction equation used in ratio calculation.
Ratio: It is the moment-capacity ratio found by the interaction equation.

Forces and Moments Tab

Specifications

i

The web post and opening in the castellated beams are listed.

x

It shows the location where the relevant forces and moments are located.

Vu

It is the shear force acting on the element.

Mu

It is the moment value acting on the element.

Pv

It is the axial force value.

Mv

It is the moment value acting on the element.

Vh

Shear force acting on the element.

Mh

It is the moment value acting on the element.

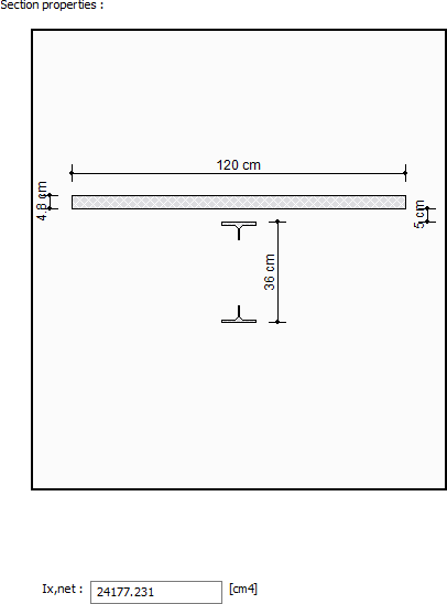
Section Details Tab

Specifications

Section properties

Ix, net: shows the net moment of inertia in the x direction.

T section properties

A: Shows the cross section area.
J: Shows the Polar Moment of Inertia.
Ix: Shows the moment of inertia in the x direction.
Iy: Shows the moment of inertia in the y direction.
ix: Shows the radius of inertia in the x direction.
iy: Shows the radius of inertia in the y direction.
Wex, üst: Indicates the moment of elastic strength in the x direction in the upper cap region.
Wey, üst: Indicates the moment of elastic strength in the y-direction in the upper cap region.
Wex, alt: Shows the moment of elastic strength in the x direction in the subheading region.
Wey, alt: Indicates the moment of elastic strength in the y-direction in the subhead region.
Wpx: Shows the plastic strength moment in the x direction.
Wpy: Shows the plastic strength moment in the y direction.

Composite Design

Design Details Tab

Specifications

Deflection

Combo: It is the combination that creates the most unfavorable section forces.
Deflection: It is the deflection formed in the honeycomb beam.
Span: Honeycomb is the length of the beam.
Limit value: The upper deflection value of the beam according to the regulation.
Ratio: It is the ratio of deflection made by the beam to the limit value.

Shear (Gross)

Combo: It is the combination that creates the most unfavorable section forces.
Location: It is the position of the section forces taken into account in the design on the beam.
Vu: It is the shear force acting on the element.
Vc: It is the shear force capacity of the element.
Ratio : It is the ratio of the shear force of the element to the capacity.

Shear (Net)

Combo: It is the combination that creates the most unfavorable section forces.
Location: It is the position of the section forces taken into account in the design on the beam.
Vu: It is the shear force acting on the element.
Vc: It is the shear force capacity of the element.
Ratio: It is the ratio of the shear force of the element to the capacity.

Horizontal shear

Combo: It is the combination that creates the most unfavorable section forces.
Location: It is the position of the section forces taken into account in the design on the beam.
Vu: It is the shear force acting on the element.
Vc: It is the shear force capacity of the element.
Ratio: It is the ratio of the shear force of the element to the capacity.

Web post buckling

Combo: It is the combination that creates the most unfavorable section forces.
Location: It is the position of the section forces taken into account in the design on the beam.
Mu: It is the moment value acting on the element.
Mc: Moment capacity of the element.
Ratio: It is the ratio of the moment acting on the element to the capacity.

Vierendeel bending

Combo: It is the combination that creates the most unfavorable section forces.
Location: It is the position of the section forces taken into account in the design on the beam.
Pu: It is the axial load value.
Mu3: It is the moment value acting on the element in 3 direction.
Pc: The axial load capacity of the honeycomb beam.
Mc3: It is the moment capacity of the element in 3 directions.
Interaction equation: It is the interaction equation used in ratio calculation.
Ratio: It is the moment-capacity ratio found by the interaction equation.

Forces and Moments Tab

Specifications

i

The web post and openning in the castellated beam are listed.

x

It shows the location where the relevant forces and moments are located.

Seen

It is the shear force acting on the element.

Mu

It is the moment value acting on the element.

Pv

It is the axial force value.

Mv

It is the moment value acting on the element.

Vh

Shear force acting on the element.

Mh

It is the moment value acting on the element.

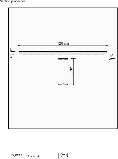
Section Details Tab

Specifications

Section properties

Ix, net: shows the net moment of inertia in the x direction.

T section properties

A: Shows the cross section area.
J: Shows the Polar Moment of Inertia.
Ix: Shows the moment of inertia in the x direction.
Iy: Shows the moment of inertia in the y direction.
ix: Shows the radius of inertia in the x direction.
iy: Shows the radius of inertia in the y direction.
Wex, üst: Indicates the moment of elastic strength in the x direction in the upper cap region.
Wey, üst: Indicates the moment of elastic strength in the y-direction in the upper cap region.
Wex, alt: Shows the moment of elastic strength in the x direction in the subheading region.
Wey, alt: Indicates the moment of elastic strength in the y-direction in the subhead region.
Wpx: Shows the plastic strength moment in the x direction.
Wpy: Shows the plastic strength moment in the y direction.


JavaScript errors detected

Please note, these errors can depend on your browser setup.

If this problem persists, please contact our support.