Place Doors
Create the base story doors in this section.
The previous steps have been implemented in the project file named Place Doors. You can download the file and follow the steps given in this title on the project. |
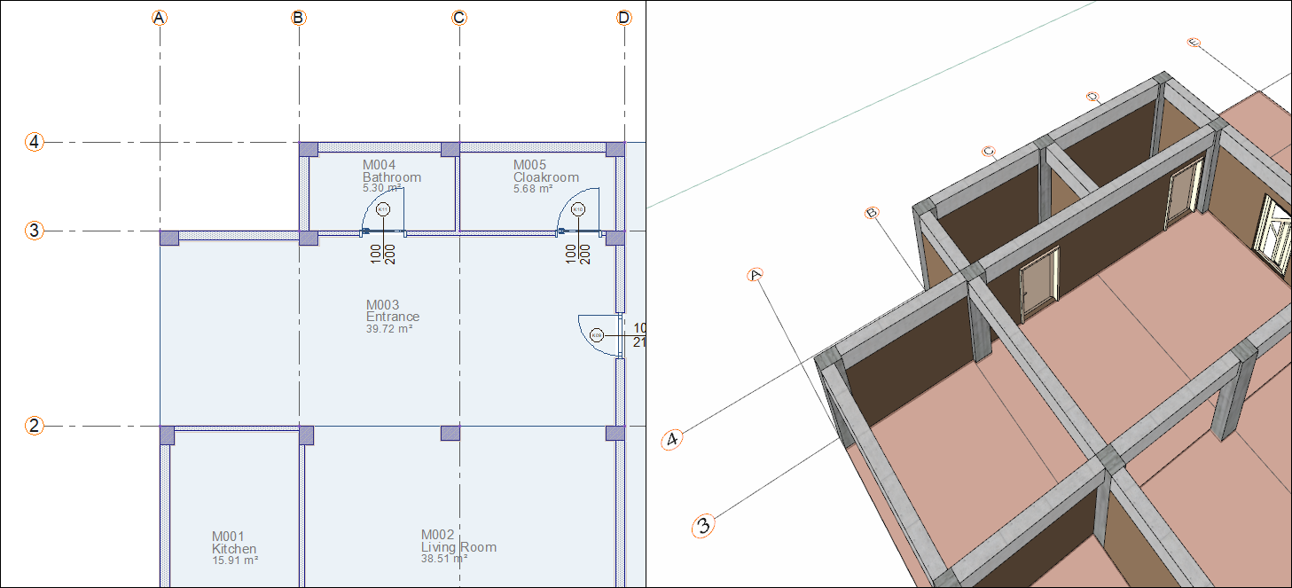
To follow the doors on the perspective screen, uncheck the slab layer from the layer list.

Click on the door/window command.
Click the settings icon from the door/window toolbar.
In the types tab, select the line 1.50/doors/simple/single leaf/K07.DIO from the list.

In the placement tab, set the height value to 210 cm and the width to 100 cm. Click the OK button to close the dialog.

Check the use distance option in the door/window toolbar and enter 0 in the value box.

Move your mouse on the D axis to the middle of the wall bounded by the axes 2 and 3.
A red arrow will pop up and the door will be placed in the middle of the wall.

Click the left mouse button. The door will be formed.

Click the settings icon from the door/window toolbar.
Select 1.50/doors/simple/single leaf/K29.dio from the list in the types tab.

In the placement tab, set the height value to 210 cm and the width to 90 cm. Click the OK button to close the dialog.
In the door/window toolbar, enter 10 in the value box.
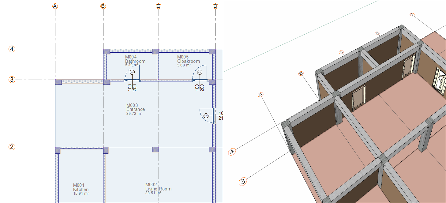
Move your mouse to the D axis side of the wall delimited by axes C and D on the 3 axis.
A red arrow will appear and the door will be placed 10 cm beyond the starting point of the wall.

Click the left mouse button. The door will be formed.

Enter 90 in the value box on the door/window toolbar.
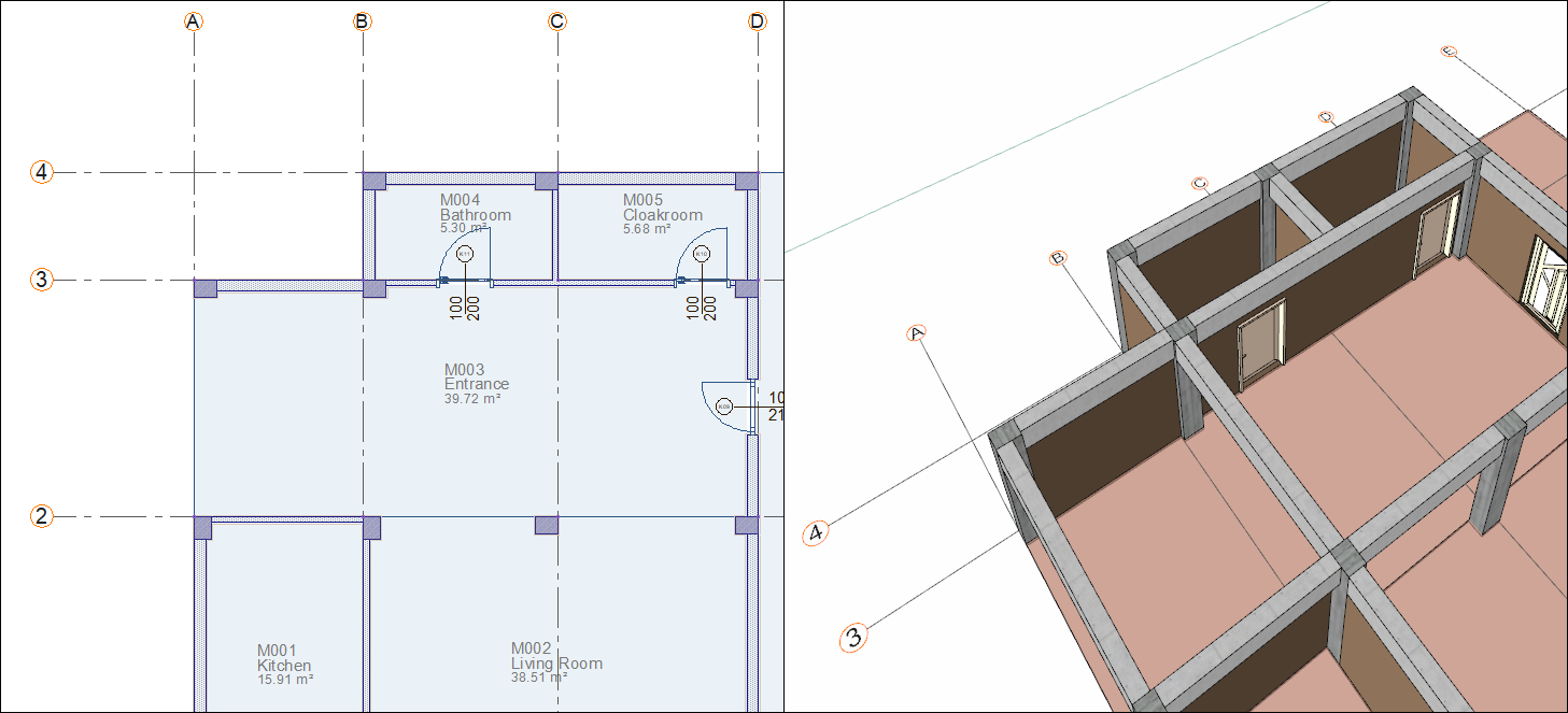
Move your mouse to the B axis side of the wall delimited by axes B and C on its 3 axis
A red arrow will pop up and the door will be placed 90 cm from the column.

Click the left mouse button. The door will be formed.

In the door/window toolbar, enter 0 in the value box.
Move your mouse on the B axis to the middle of the wall bounded by axes 1 and 2.
A red arrow will pop out and the door will be placed in the middle of the wall.

Press the 3 key on the keyboard. The symmetry of the door will be taken.

Click the left mouse button. The door will be formed.

Click the settings icon from the door/window toolbar.
In the types tab select the line 1.50/doors/sliding/Sk01.dio from the list.

In the placement tab, set the height value to 210 cm and the width to 300 cm. Click the OK button to close the dialog.
Move your mouse on the D axis to the middle of the wall bounded by axes 1 and 2.
A red arrow will pop out and the door will be placed in the middle of the wall.

Click the left mouse button. The door will be formed.

Press the Esc key on the keyboard to exit the command. Base story doors are completed.

Follow the steps of the video below.
Next Tutorial