Create the Slabs
Create the base story slabs in this section.
Previous steps have been followed in the project file named Create the Slabs. You can download the file and follow the steps given in this title on the project. |
Enter the slab command.
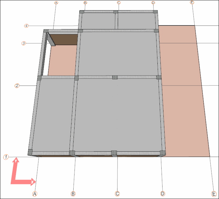
Move your mouse over the area delimited by axes 1-2 and A-B and click the left button.

The slab will be formed.

Move your mouse over the area delimited by axes 1-2 and B-D and click the left button.

The slab will be formed.

Move your mouse over the area delimited by axes 2-3 and B-D and click the left button.

The slab will be formed.

Move your mouse over the area delimited by axes 3-4 and B-C and click the left button.

The slab will be formed.

Move your mouse over the area delimited by axes 3-4 and C-D and click the left button.

The salb will be formed. Press the Esc key on the keyboard to exit the command.

Base story slabs are completed.

Follow the steps of the video below.
Next Tutorial