Column Anchorage Drawings
The Column Anchorage Drawings command is used to prepare the column anchorage drawings.
Location of the Column Anchorage Drawings Command
You can access it under the Steel tab, Create Drawings heading.

Usage Steps
Click on the Column Anchorage Drawings icon.
Column anchorage drawings will be created.
Before creating the drawings, you can access the Steel Drawing Settings dialog by clicking the settings button from the steel drawings dialog . From this dialog, layout settings, scales, fonts, etc. You can access parameters related to steel drawings.
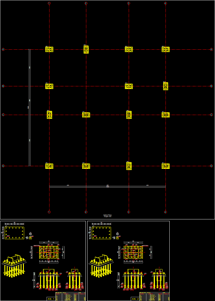
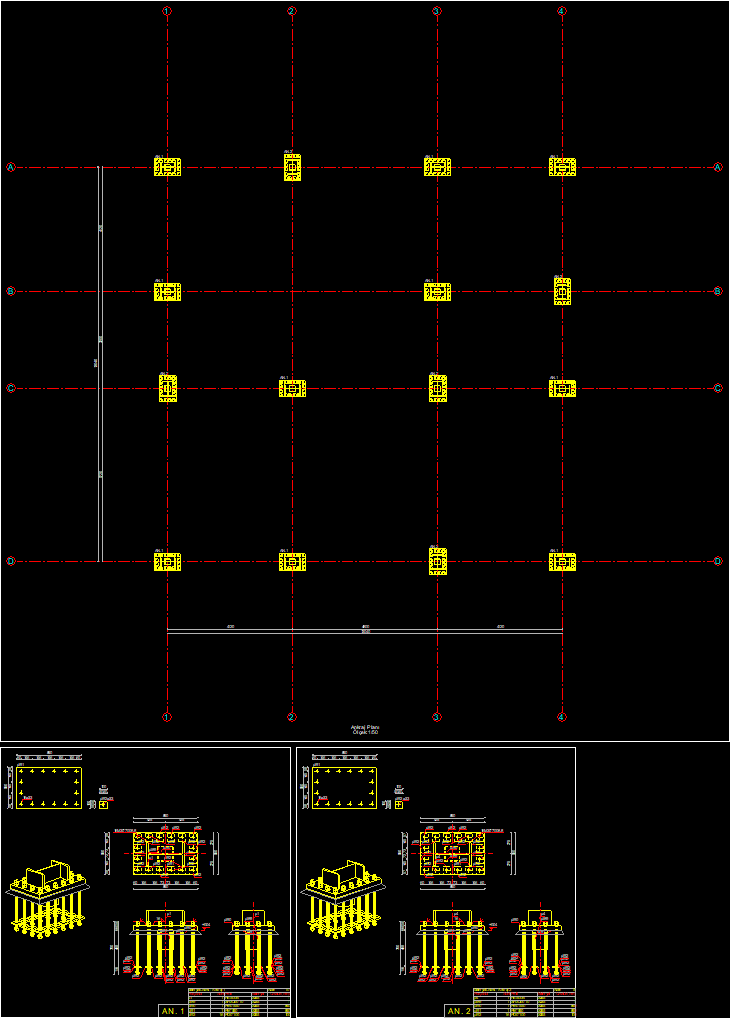
Sample column anchorage drawings |
|---|
![]() |
Next Topic
