Add Dimensions
Create inner and outer dimensions in this section.
The previous steps have been implemented in the project file called Add Dimensions. You can download the file and follow the steps given in this title on the project. |
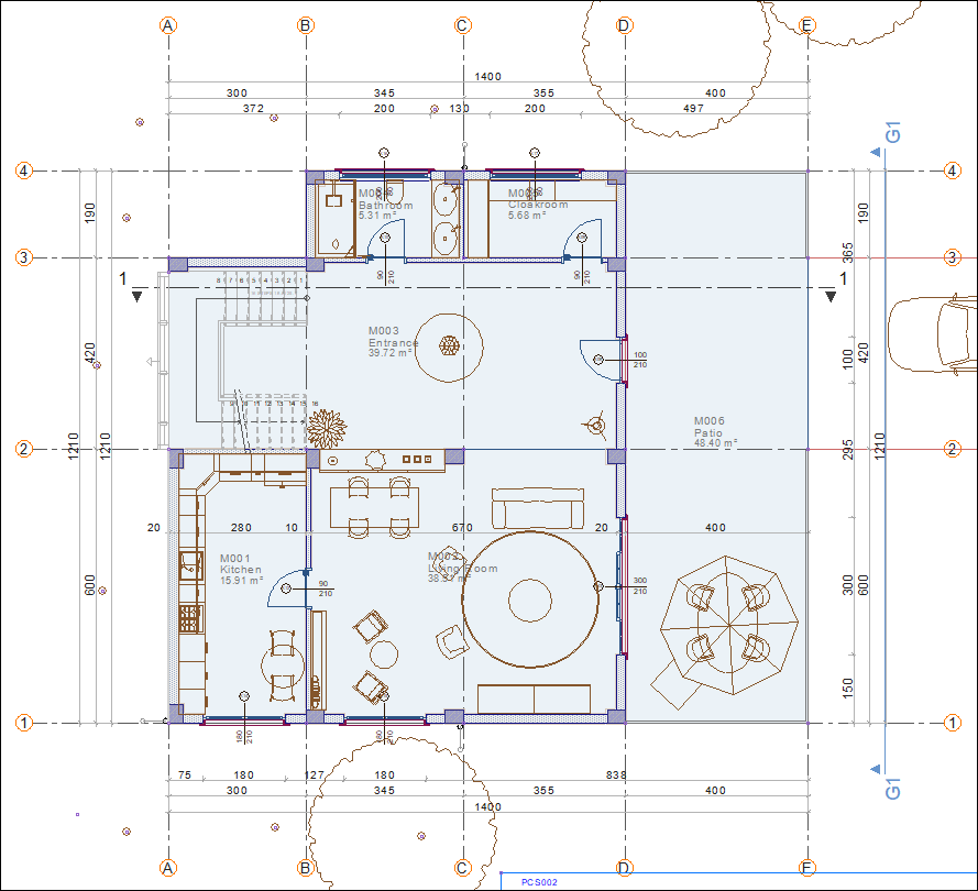
Click on the outer dimension command from the drawings menu.
Use the window method to select exterior objects to dimension.

Select the objects.

Click the right mouse button to complete the selection process.
Determine which wall the dimensions will be placed parallel by moving your mouse to that side.

Click the left mouse button. Outer dimension will be formed.

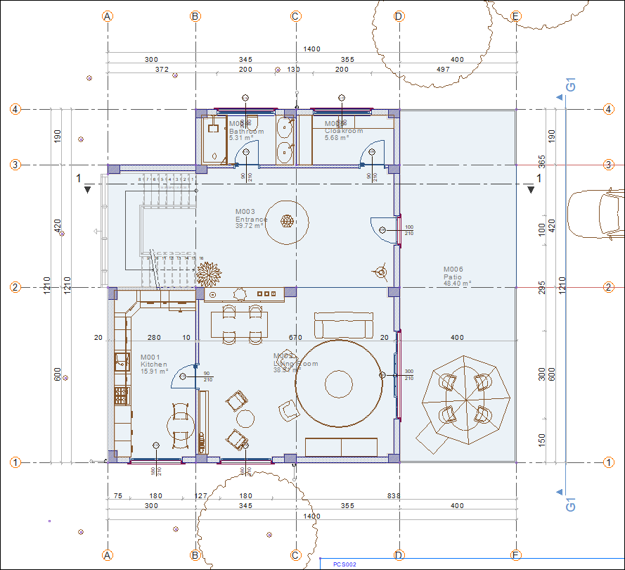
Move to the other side. Select the objects to be dimensioned.

Click the right mouse button to complete the selection process.
Determine which wall the dimensions will be placed parallel by moving your mouse to that side.

Click the left mouse button. Outer dimension will be formed.
Move to the other side. Select the objects to be dimensioned.

Click the right mouse button to complete the selection process.
Determine which wall the dimensions will be placed parallel by moving your mouse to that side.

Click the left mouse button. Outer dimension will be formed.
Move to the other side. Select the objects to be dimensioned.

Click the right mouse button to complete the selection process.
Determine which wall the dimensions will be placed parallel by moving your mouse to that side.

Click the left mouse button. Press the Esc key on the keyboard and exit the command.
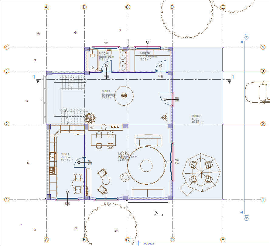
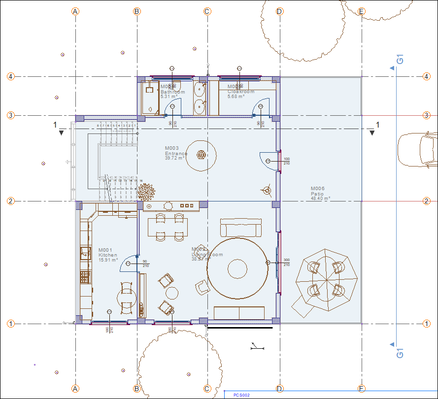
Outer dimensions will be completed.

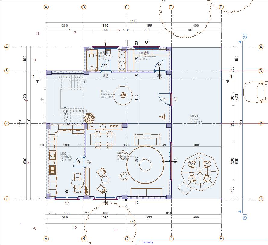
Move your mouse over the last outer dimension you made and double click.
The dimension settings dialog will open. Enter the offset value as 500cm.

Click the OK button to close the dialog.
The location of the outer dimension will change.

Click the inner dimension command.
Draw your inner dimension line parallel to 1 axis.

Inner dimension will be formed.

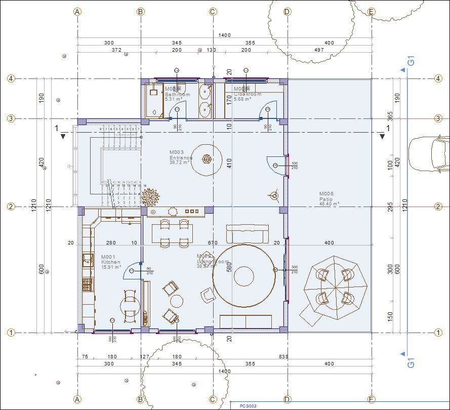
Draw your dimension line (parallel to the C axis) passing through the areas you want to measure.

Inner dimension will be formed.
Press the Esc key on the keyboard and exit the command.

Follow the steps of the video below.
Next Tutorial