Place the Furnishings
In this section, place the furnishings in the living room.
Previous steps have been followed in the project file named Place the Furnishings. You can download the file and follow the steps given in this title on the project.
|
To follow the furnishings on the perspective screen, uncheck the slab layer from the layer list.

You can see only the active story on the perspective screen by clicking the N button on the upper right corner of the perspective screen.

Click on the library command.
Click the settings icon in the library toolbar. The library settings dialog will open.
Select the living room furniture/armchairs/armchair04 from the list. Uncheck the pattern option.
Click the OK button to close the dialog. A preview of the selected armchair will appear on the screen.
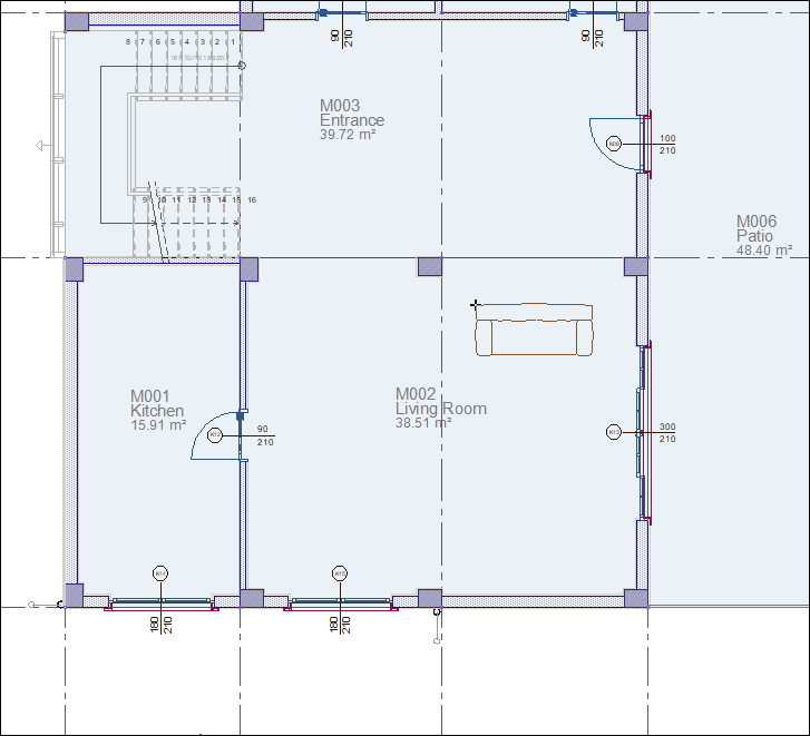
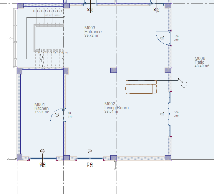
Move it to the left side of the sliding door as in the image below and click the left mouse button.

The select entity dialog will open. Select the object you want to place on the object from the list. Click the OK button to close the dialog.

The upper left corner of the armchair will be fixed, it will rotate with the movement of the mouse.
Press the Shift key to make it straight.

Click the left mouse button.

The armchair will be formed.

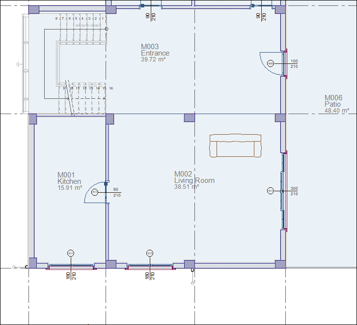
Go to the library settings and select living room furniture/armchairs/armchair14 from the list.
Click the OK button to close the dialog. A preview of the selected armchair will appear on the screen.
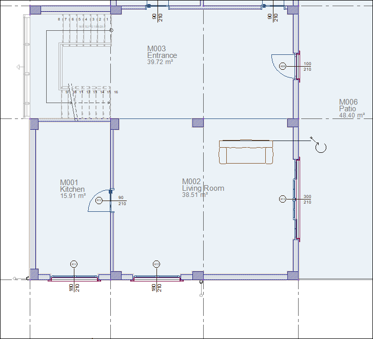
Place the armchair as in the image below.

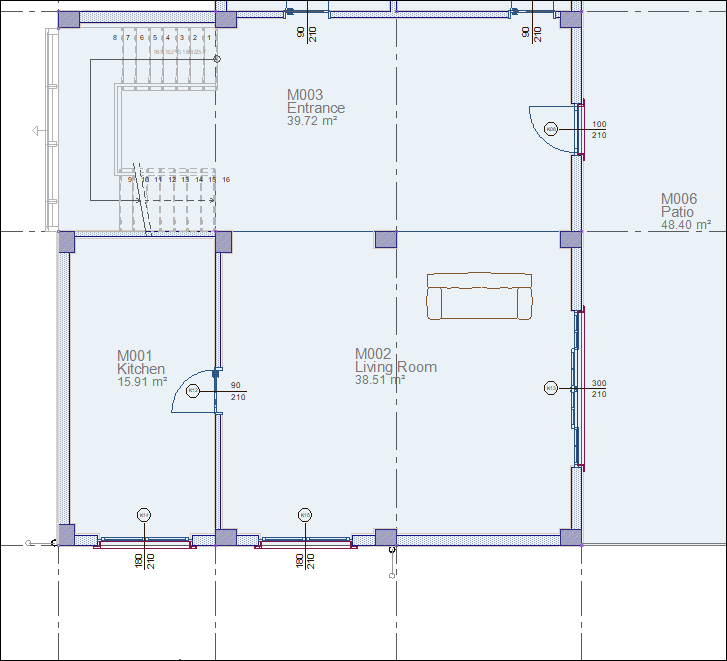
Place another of the same armchair as in the image below.

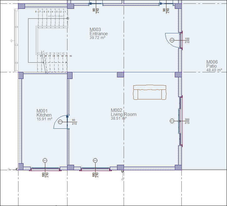
Go to the library settings and select the living room furniture/coffee tables/coffee table01 from the list.
Click the OK button to close the dialog. A preview of the selected table will appear on the screen.
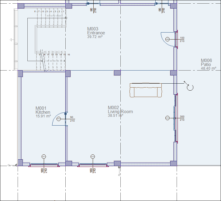
Place the table as in the image below.

Follow the steps of the video below.
Next Tutorial