Entities to Exclude on Section
With the feature of Entities to exclude on section, the section/elevation are taken without the objects in the options. The checked objects of foundations, libraries, jambs, sweeps, railings and terrains are not cut off. The section/elevation speed changes according to the marked object/objects.
Location of the Entities to Exclude on Section Feature
You can access the entities to exclude on section feature from the section/view settings dialog general tab.

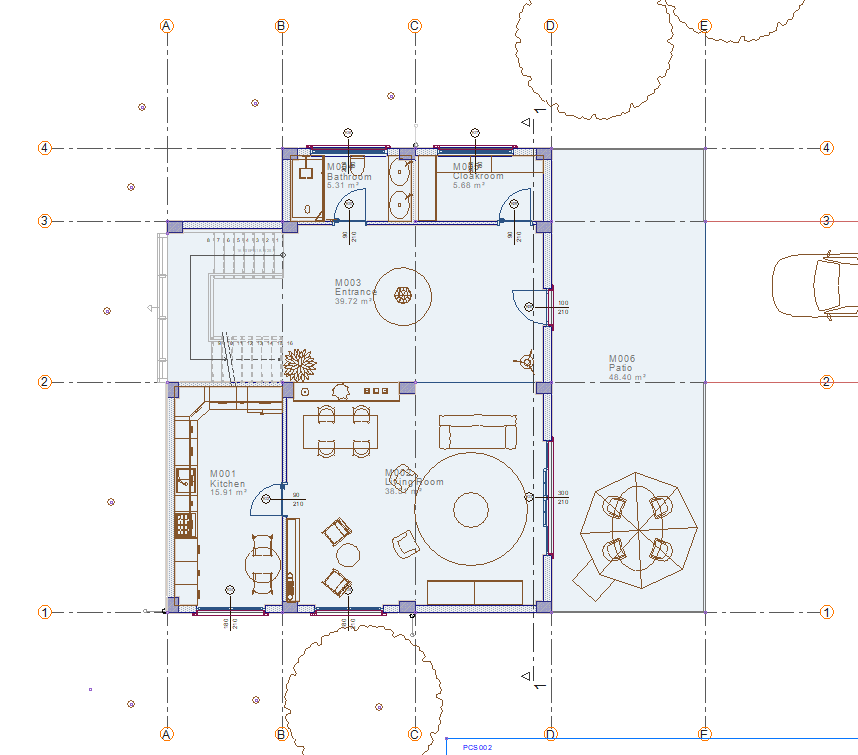
The plan to be cut out |
![]() |
Before selecting entities to exclude on section |
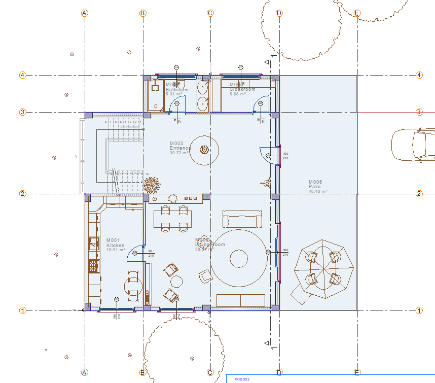
![]() |
After selecting libraries as entities to exclude on section |
![]() |
Next Topic


