Create the Section and Elevation Views
Create the sections and elevation views in this section.
In the project file named Create the Section and Elevation Views, previous steps have been applied. You can download the file and follow the steps given in this title on the project.
|
Click on the section line command from the drawings menu.
Draw a straight section line so that it passes the stair parallel to axis 3 and press enter.

Determine the viewing direction towards axis 2 and click the left mouse button.

A section line will be formed.

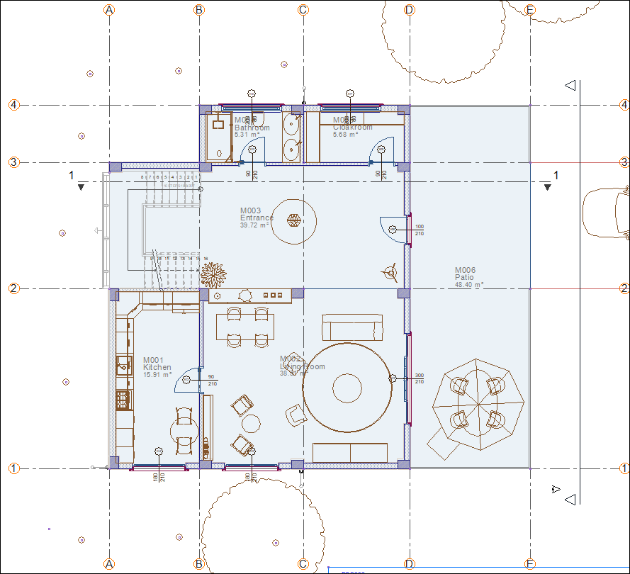
Move the mouse over the section line and double click.
The section settings dialog will open. Click the generate button. (You can find detailed information on the section settings dialog under Section/View Settings.)

The section will be created automatically by the program.

Click on the elevation line command.
Draw a straight elevation line parallel to the axis E.

Determine the viewing direction towards the axis E and click the left mouse button.

Elevation line will be formed.

Move the mouse over the elevation line and double click.
The appearance settings dialog will open. Click the generate button. (Detailed information about the view settings dialog can be found in the Section / View Settings section.)

The elevation will be created automatically by the program.

Follow the steps of the video below.
Next Tutorial