Zone Coating Material Texts
With the feature of coating material texts material names for floor, wall and ceiling can be written and can be displayed in the plan.
Location of the Zone Coatings Material Texts Feature
You can access the coating material texts feature from the text tab of the zone settings dialog.

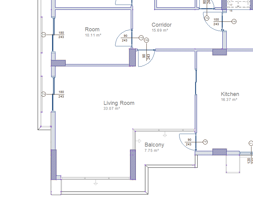
When materials are not written in the coating material texts section |
![]() ![]() |
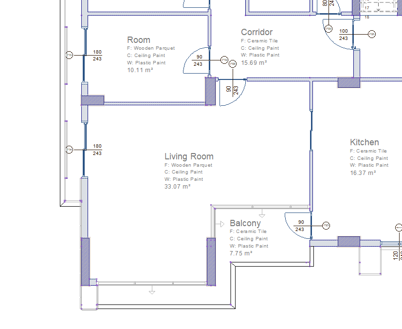
When materials are written in the coating material texts section |
![]() ![]() |
Next Topic



