Distance Between Texts and Angle
The distance between the texts and the angle properties are changed, and the texts are rotated by entering the angle value.
Location of Distance Between Texts and Angle Features
You can access the features from the texts tab of the zone settings dialog .

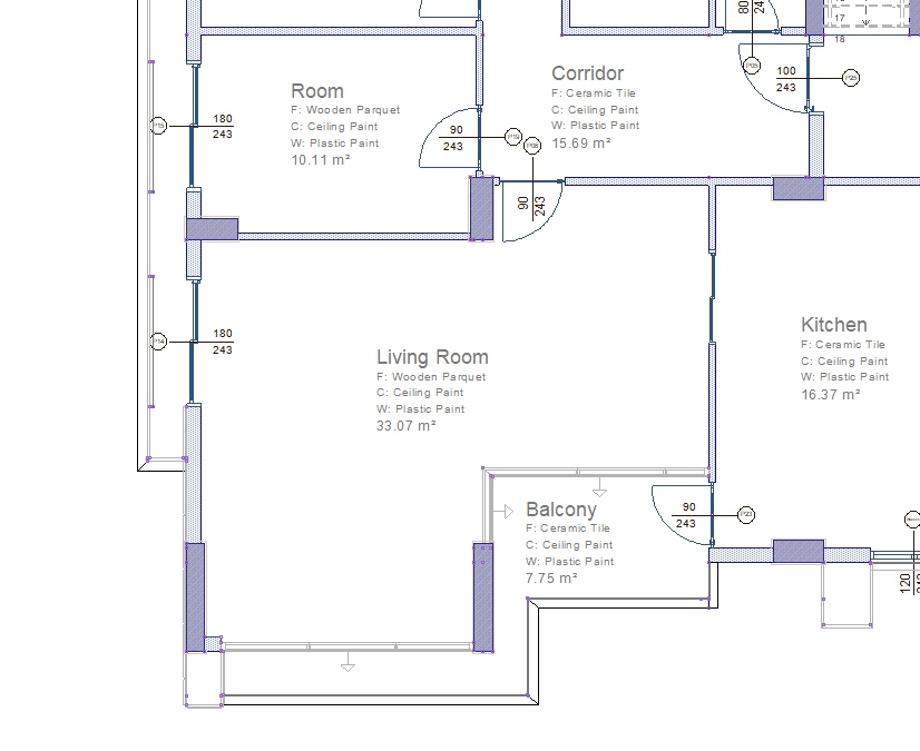
Before changing the distance between the texts and angle |
![]() ![]() |
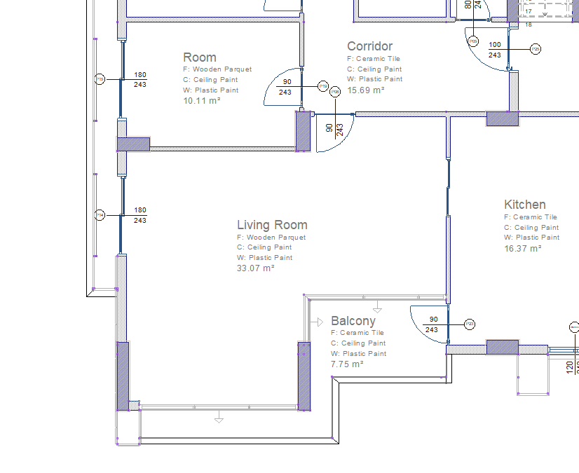
After changing the distance between the texts - set distance value 20 |
|---|
![]() ![]() |
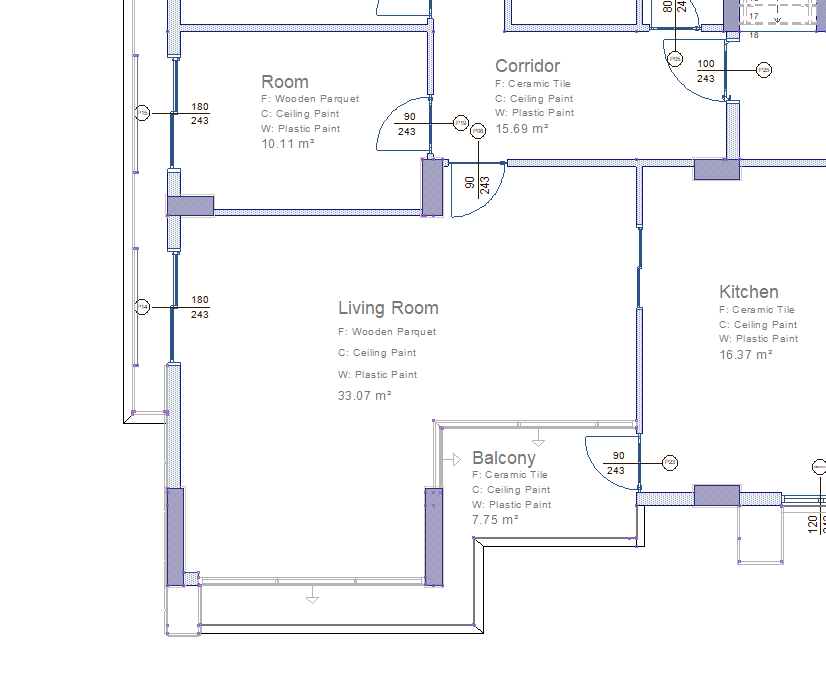
After changing the angle - set angle value 30 |
![]() ![]() |
Next Topic





