Defining a Notched Seating Connection
With the Notched Seating Connection command, connection is defined with the number of stiffening plates at different elevations, which is one as one and the other as two pieces of steel element.

Location of the Notched Seating Connection Command
You can access it under the Ribbon menu, Connection tab, Experimentals title.

Usage Steps
For two beams whose elevation is different but intersecting;
From the Connection menu, click on the Notched Seating Connection icon.
First choose the one piece beam. Then select the parts of the other beam in turn.
The connection will occur with default settings.
Location of the Notched Seating Connection Settings Dialog
Select the connection and click the right mouse button. Click the Properties line from the right click menu that opens.

Notched Seating Connection Settings Dialog
Type Tab

Specifications |
|---|
Type ![]() For the connection, one of the bolted or welded connection types is selected. |
Schematic drawing ![]() Connection and placement values are shown on the schematic drawing. |
Preview ![]() There is a preview of the connection. The selection made and the entered values can be followed simultaneously in the preview. |
General Tab

Specifications |
|---|
Plate ![]() Plate dimensions are determined by entering values. The values to be entered are shown in the schematic drawing. |
Schematic drawing ![]() Connection and plate values are shown on the schematic drawing. |
Preview ![]() There is a preview of the connection. The selection made and the entered values can be followed simultaneously in the preview. |
Stiffener Tab

Specifications |
|---|
Primary stiffener plate ![]() The main primary stiffener plate is determined by entering the value. The values to be entered are shown in the schematic drawing. |
Secondary stiffener plate ![]() The secondary stiffener plates are determined by entering the values. The values to be entered are shown in the schematic drawing. |
Schematic drawing ![]() Connection and plate values are shown on the schematic drawing. |
Preview ![]() There is a preview of the connection. The selection made and the entered values can be followed simultaneously in the preview. |
Chamfers Tab

Specifications |
|---|
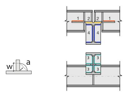
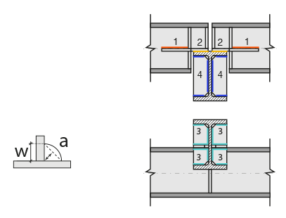
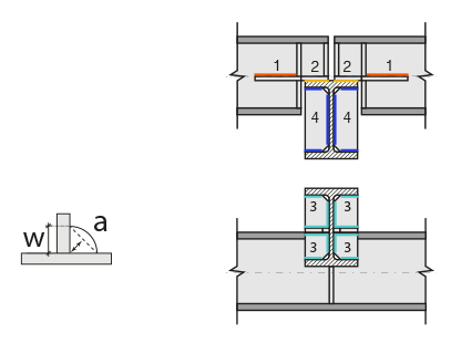
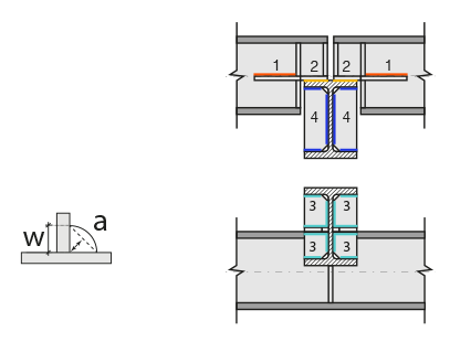
Chamfer (c1, c2) ![]() For easy assembly of the plates in the field, the use of slope, slope type and geometric properties are determined by entering the value. |
Schematic drawing ![]() Connection, notching and cutting values are shown on the schematic drawing. |
Preview ![]() There is a preview of the connection. The selection made and the entered values can be followed simultaneously in the preview. |
Bolts Tab

Specifications |
|---|
Horizontal arrangement ![]() The horizontal arrangement distance value of the bolts is entered. The values to be entered are shown in the schematic drawing. |
Group 1 ![]() Distance values of bolts to beam and other bolts are entered. The values to be entered are shown in the schematic drawing. |
Bolt properties ![]() The Hole and Bolt Parameters dialog is opened by clicking on the bolt properties button. The bolt properties are set in this dialog. |
Schematic drawing ![]() Connection and bolt arrangement values are shown on the schematic drawing. |
Preview ![]() There is a preview of the connection. The selection made and the entered values can be followed simultaneously in the preview. |
Welds Tab

Specifications |
|---|
Welds ![]() The thickness, type and angle values of the welds to be made at the joints are given. The information on whether it will be done on the construction site or not is entered. |
Weld electrode ![]() The strengths of the welding electrodes are defined in the design inputs. The strength of the main element in the weld joint is controlled under the condition that it has less strength than the weld strength. If necessary, click the list and define "Create New…". To create the welding electrode, give the information "Name" and "Weld metal tensile strength" in the dialog that opens after clicking "Create New". Welding geometry is determined automatically by the program. These properties can be changed to easily determine the connection properties. Geometry features are in accordance with industry standards and in the form specified in AISC. |
Schematic drawing ![]() Connection and weld values are shown on the schematic drawing. |
Preview ![]() There is a preview of the connection. The selection made and the entered values can be followed simultaneously in the preview. |
Next Topic
















