Giving the Floor Text and Zone Names in Sections
With Draw floor texts and Write zone names features, on the elements drawn in the section materials and information of zones where get section, shown as optional in section.
Location of Draw Floor Texts and Write Zone Names Features
You can access the properties from the section settings dialog additional options tab.

When draw floor texts and zone names are not active |
![]() |
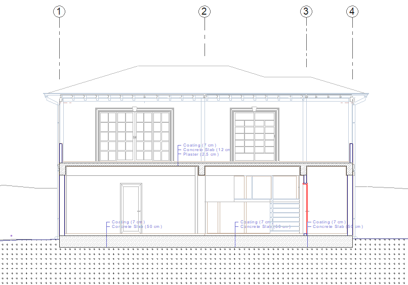
When the draw floor text is active |
![]() |
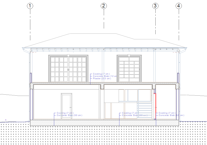
When draw floor texts and zone names are active |
![]() |


